Klare Linien. Viel Licht. Viel Leben.

Bauhaus 200

Die Architektur folgt der klaren Formensprache des Bauhausstils: reduzierte Gestaltung, geometrische Formen und eine ruhige, zeitlose Fassade. Große Fensterflächen bringen Licht in alle Räume und schaffen eine helle, offene Wohnatmosphäre.

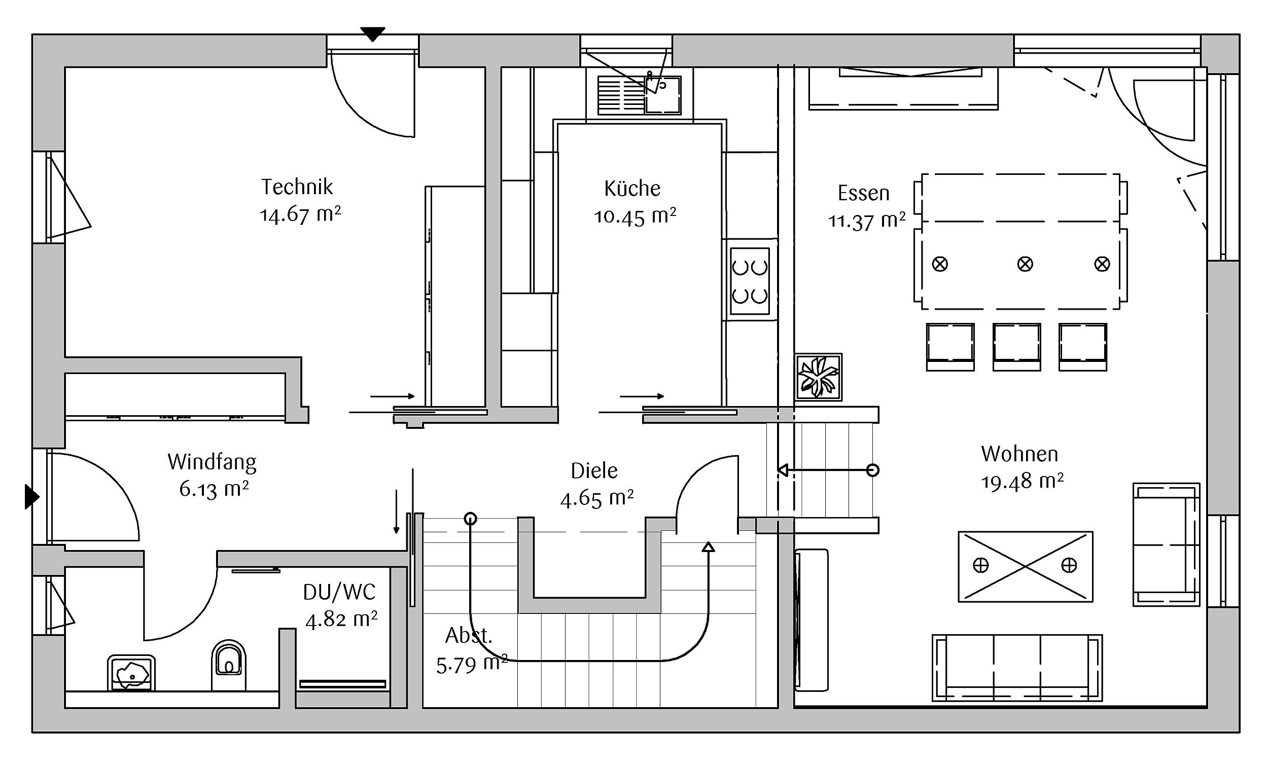
Im Erdgeschoss bildet der großzügige Wohn- und Essbereich den Mittelpunkt des Hauses. Küche, Essen und Wohnen greifen ineinander und ermöglichen kurze Wege im Alltag. Die Terrasse erweitert den Wohnraum nach außen und wird in den warmen Monaten zum zusätzlichen Lebensmittelpunkt.

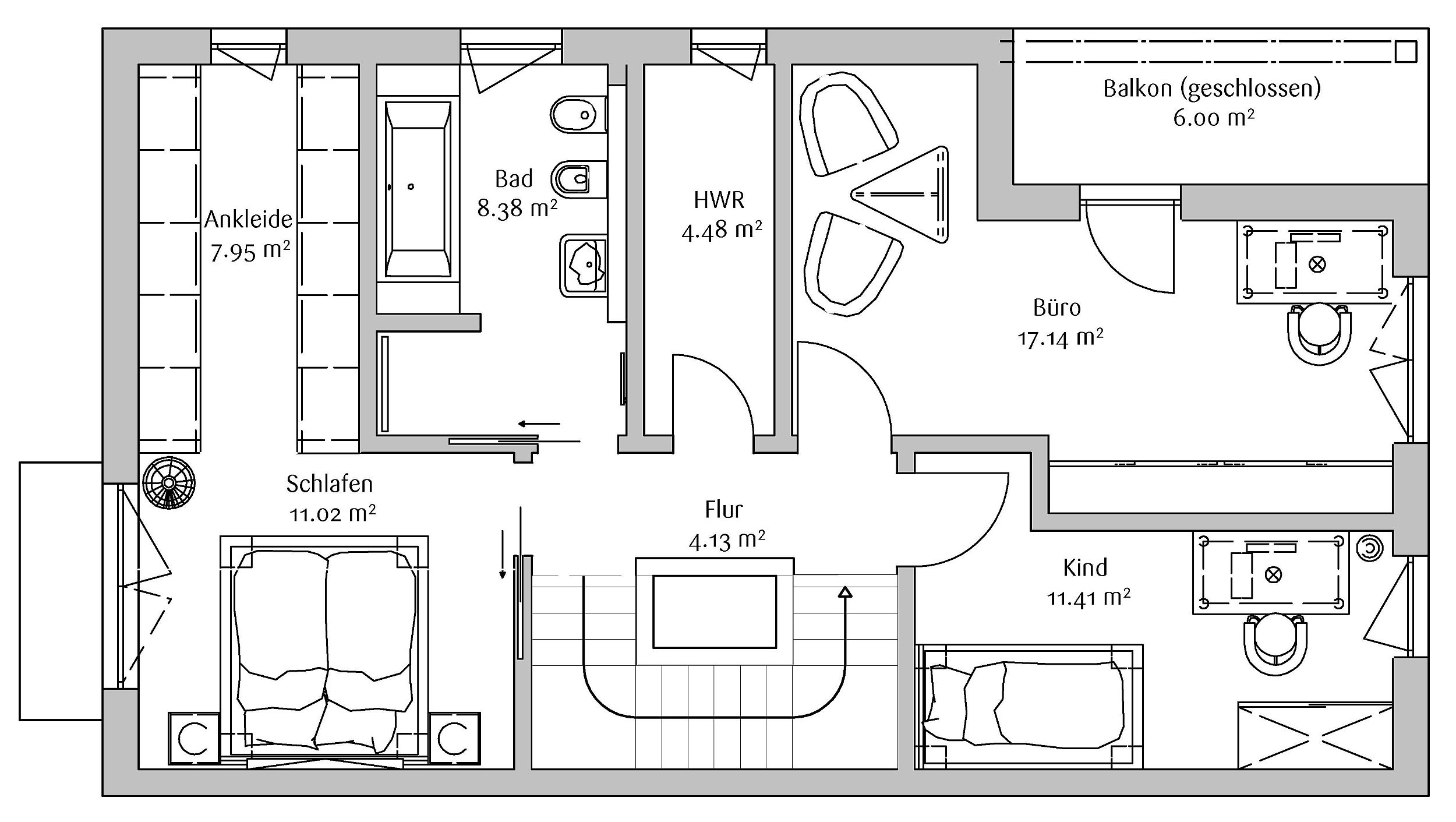
Im Obergeschoss stehen Rückzug und Funktionalität im Vordergrund. Ein Elternbereich mit Schlafzimmer und Ankleide, Kinderzimmer sowie ein separates Büro schaffen Raum für Familie, Arbeiten und persönliche Bedürfnisse. Die klare Raumstruktur sorgt dafür, dass sich Gemeinschaft und Privatleben gut ausbalancieren lassen.

Das Haus zeigt, wie modernes Wohnen heute gedacht werden kann: offen, lichtdurchflutet und mit einer Architektur, die sich bewusst auf das Wesentliche konzentriert.

Highlights

  • Bauhausstil mit klarer, reduzierter Formensprache
  • Offener Wohn-, Ess- und Küchenbereich als Zentrum des Hauses
  • Große Fensterflächen für viel Licht und Leichtigkeit
  • Terrasse als Erweiterung des Wohnraums
  • Elternbereich mit Ankleide, Kinderzimmer und Büro im Obergeschoss
Details

Bauhaus 200

  • Haustyp

    Haustyp

    Einfamilienhaus
  • baustil

    Baustil

    Bauhaus
  • dachform

    Dachform

    Flachdach
  • geschosse

    Geschosse

    2
  • zimmer

    Zimmer

    4
  • wohnflaeche

    Wohnfläche

    über 200 m²

Grundriss Download