Alles auf einer Ebene

Bungalow 142

Dieses Haus ist konsequent als ebenerdiges Zuhause geplant. Wohnen, Schlafen und Alltag liegen auf einer Ebene und sind über kurze Wege miteinander verbunden.

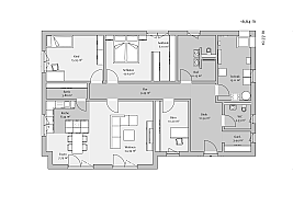
Der Grundriss teilt sich in zwei klare Bereiche: den offenen Wohntrakt und den ruhigeren Schlafbereich. Ein schmaler Flur verbindet beide Zonen und sorgt für Orientierung im Haus.

Der Wohn- und Essbereich öffnet sich über große Fensterflächen zum Garten. Eine mittig platzierte Glasschiebetür führt direkt auf die Terrasse und schafft einen fließenden Übergang nach draußen.

Im privaten Bereich liegen Schlafzimmer und Kinderzimmer, ergänzt durch Bad, Technik- und Nebenräume. Alle Räume sind kompakt angeordnet und auf ein komfortables Wohnen ohne Treppen ausgerichtet.

Das Haus zeigt, wie ein eingeschossiges Konzept Offenheit, Alltagstauglichkeit und langfristige Nutzbarkeit verbinden kann.

Eleganz und Exklusivität

Highlights

  • Bungalow auf einer Ebene
  • Klare Trennung von Wohn- und Schlafbereich
  • Direkter Zugang zur Terrasse aus dem Wohnraum
  • Große Fensterflächen mit Gartenbezug
  • Kurze Wege und kompakte Raumstruktur
Details

Bungalow 142

  • Haustyp

    Haustyp

    Einfamilienhaus
  • baustil

    Baustil

    Bungalow
  • dachform

    Dachform

    Satteldach
  • geschosse

    Geschosse

    1
  • zimmer

    Zimmer

    4
  • wohnflaeche

    Wohnfläche

    121 m² bis 150 m²

Grundriss Download

Individuelle Hausträume

Kundenhäuser