klassische Architektur und modernste Energielösungen

Casa Mina - Poing

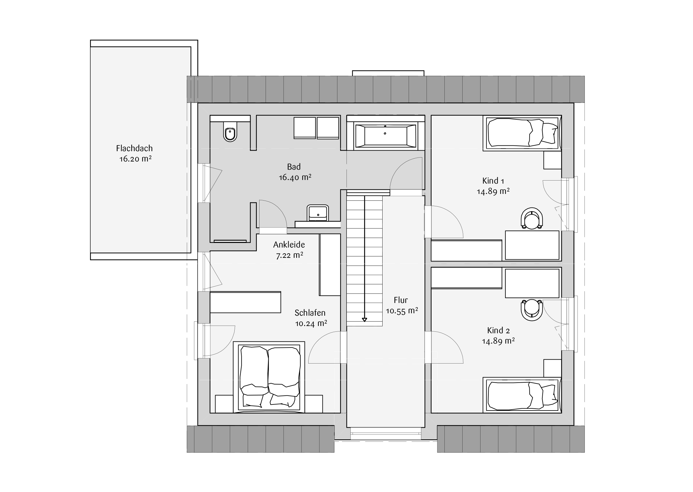
Das Musterhaus CasaMina verbindet klassische Architektur mit einer der modernsten Energielösungen im Holzhausbau. Mit rund 151 m² Wohnfläche, Satteldach und 1,5 Etagen fügt sich das Haus harmonisch in gewachsene Wohngebiete ein und wirkt vertraut, bodenständig und zugleich zukunftsorientiert.

Im Inneren steckt jedoch ein hochintelligentes Konzept: CasaMina ist als ganzheitliches Elektrohaus gedacht. Die Kombination aus sehr guter Gebäudehülle, Photovoltaik, Wärmepumpe und smartem Energiemanagement sorgt dafür, dass Energie effizient genutzt, gespeichert und genau dann eingesetzt wird, wenn Ihr sie braucht. Das Haus selbst wird dabei zum Speicher – vom Estrich bis hin zur Einbindung eines möglichen Elektroautos.

Die Technik arbeitet im Hintergrund, während Ihr den Komfort spürt: angenehme Temperaturen, viel Licht, ein gesundes Raumklima und eine Steuerung, die viele Funktionen im Alltag vereinfacht. Die durchdachte Planung mit fünf Zimmern schafft Raum für Familienleben, Homeoffice und persönliche Rückzugsorte. Gleichzeitig bleibt das Haus flexibel und anpassbar an sich verändernde Lebenssituationen.

CasaMina steht damit für ein Zuhause, das klassische Wohnlichkeit mit moderner, nahezu autarker Energieversorgung verbindet – intelligent, nachhaltig und zukunftssicher.

Einladung ins Musterhaus

Kommt vorbei und entdeckt, wie sich modernes Wohnen wirklich anfühlen kann.
Nehmt Euch Zeit, alles in Ruhe auf Euch wirken zu lassen und findet heraus, ob genau hier Euer zukünftiges Zuhause beginnen könnte.

Öffnungszeiten Bauzentrum Poing: Mittwoch bis Sonntag jeweils von 11:00 bis 18:00 Uhr

Details

MH Casa Mina

  • baustil

    Baustil

    Stadthaus
  • dachform

    Dachform

    Satteldach
  • geschosse

    Geschosse

    1,5
  • zimmer

    Zimmer

    5
  • wohnflaeche

    Wohnfläche

    151 m² bis 200 m²