klare reduzierte Architektur

Cube X - Günzburg

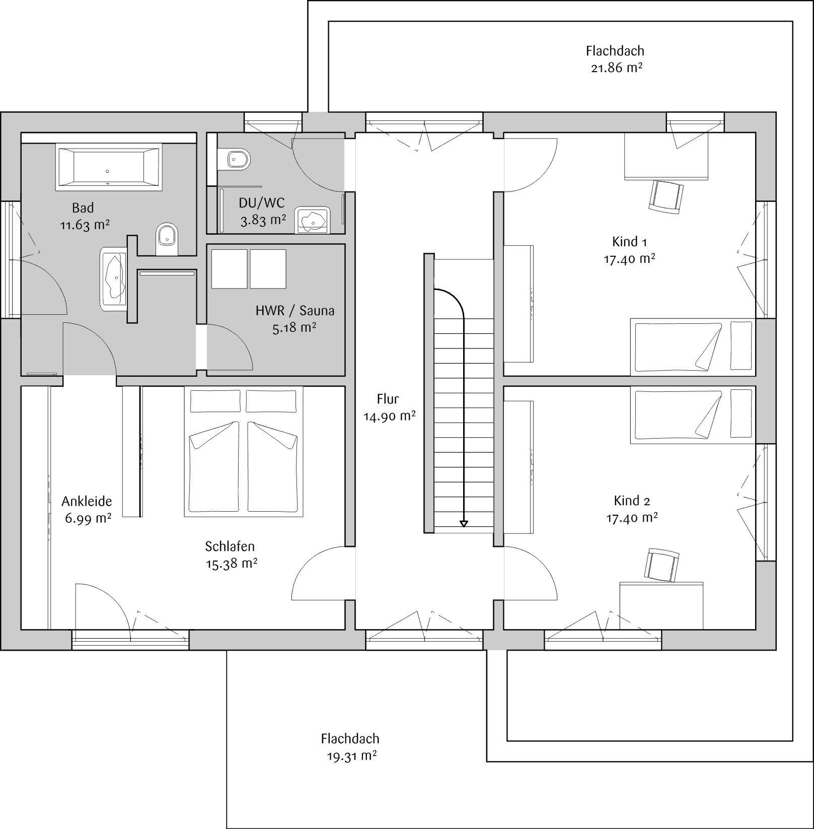
Das Musterhaus CubeX steht für modernes Wohnen in klarer, reduzierter Architektur. Mit seinem kubischen Bauhausstil, dem Flachdach und rund 211 m² Wohnfläche auf zwei Etagen verkörpert es Großzügigkeit, Offenheit und eine sehr zeitgemäße Form des Lebens. Die klare Linienführung, große Fensterflächen und die durchdachte Raumaufteilung schaffen ein Zuhause, das modern wirkt und gleichzeitig viel Geborgenheit bietet.

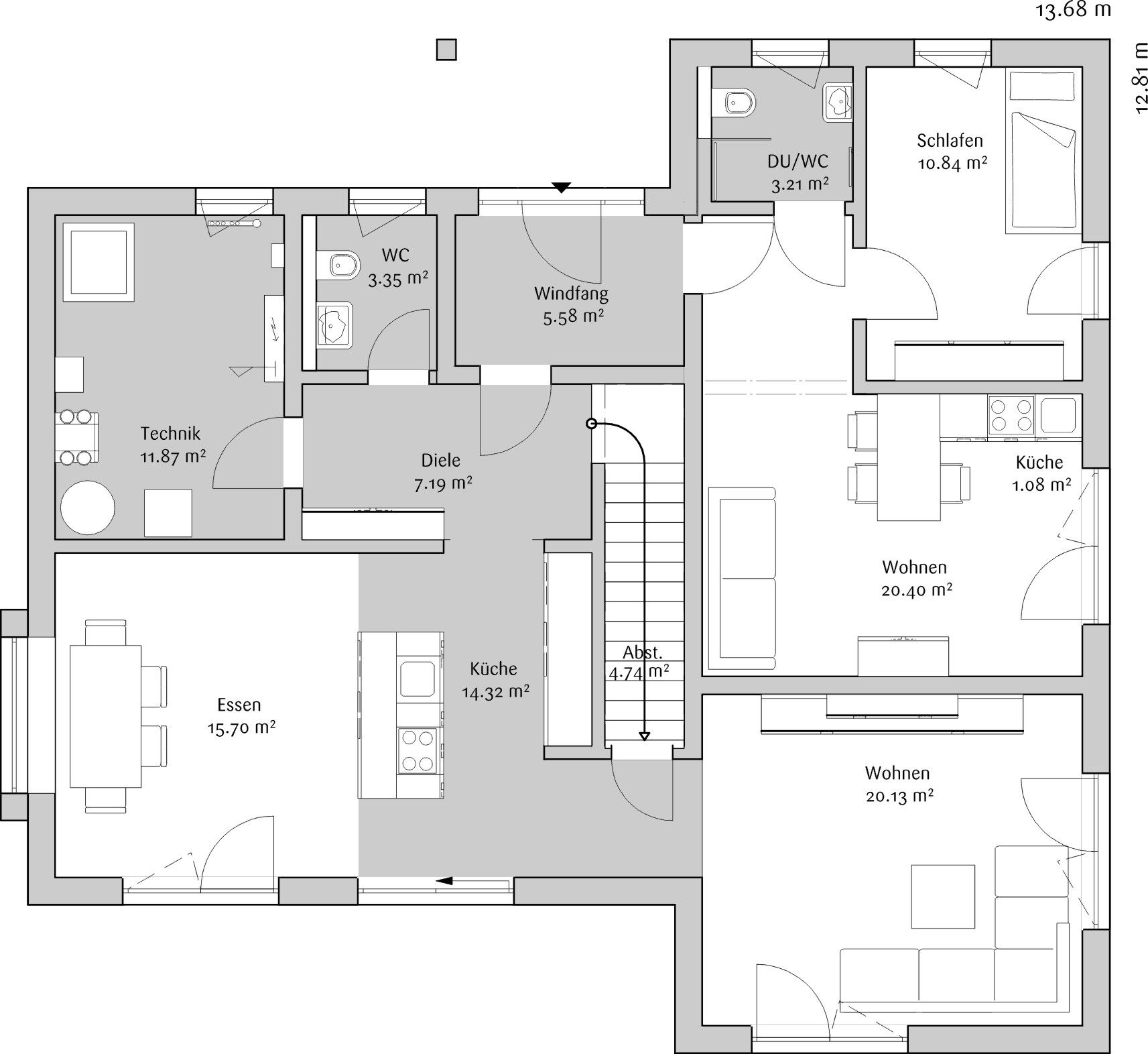
Im Inneren zeigt das CubeX, wie flexibel ein Haus heute gedacht sein kann. Offene Wohnbereiche, klare Strukturen und viele Rückzugsorte schaffen Raum für das Familienleben, fürs Arbeiten oder für persönliche Freiräume. Das Haus ist als Effizienzhaus 40 Plus konzipiert und nutzt moderne Technik wie Photovoltaik, Batteriespeicher und Wärmepumpe, um möglichst viel Energie selbst zu erzeugen und zu nutzen.

Ein besonderes Highlight ist die integrierte Einliegerwohnung. Sie macht das CubeX zu einem Haus mit Perspektive: heute vermieten, morgen von zu Hause arbeiten oder später einen eigenen Bereich für Eltern oder erwachsene Kinder schaffen. Dieses flexible Wohnkonzept begleitet Euch durch verschiedene Lebensphasen und gibt Euch langfristige Sicherheit.

Auch im Innenraum wird der Baustoff Holz bewusst inszeniert. Natürliche Materialien, klare Raumgliederungen und ein stimmiges Lichtkonzept sorgen für eine warme Atmosphäre trotz der modernen, geradlinigen Architektur.

Einladung ins Musterhaus

Kommt vorbei und entdeckt, wie sich modernes Wohnen wirklich anfühlen kann.
Nehmt Euch Zeit, alles in Ruhe auf Euch wirken zu lassen und findet heraus, ob genau hier Euer zukünftiges Zuhause beginnen könnte.

Öffnungszeiten Fertighauswelt Günzburg: Mittwoch bis Sonntag jeweils von 11:00 bis 18:00 Uhr

Details

MH Cube X

  • baustil

    Baustil

    Bauhaus
  • dachform

    Dachform

    Satteldach
  • geschosse

    Geschosse

    2
  • zimmer

    Zimmer

    7
  • wohnflaeche

    Wohnfläche

    über 200 m²