auf das Leben als Paar zugeschnitten

Klassisch 156

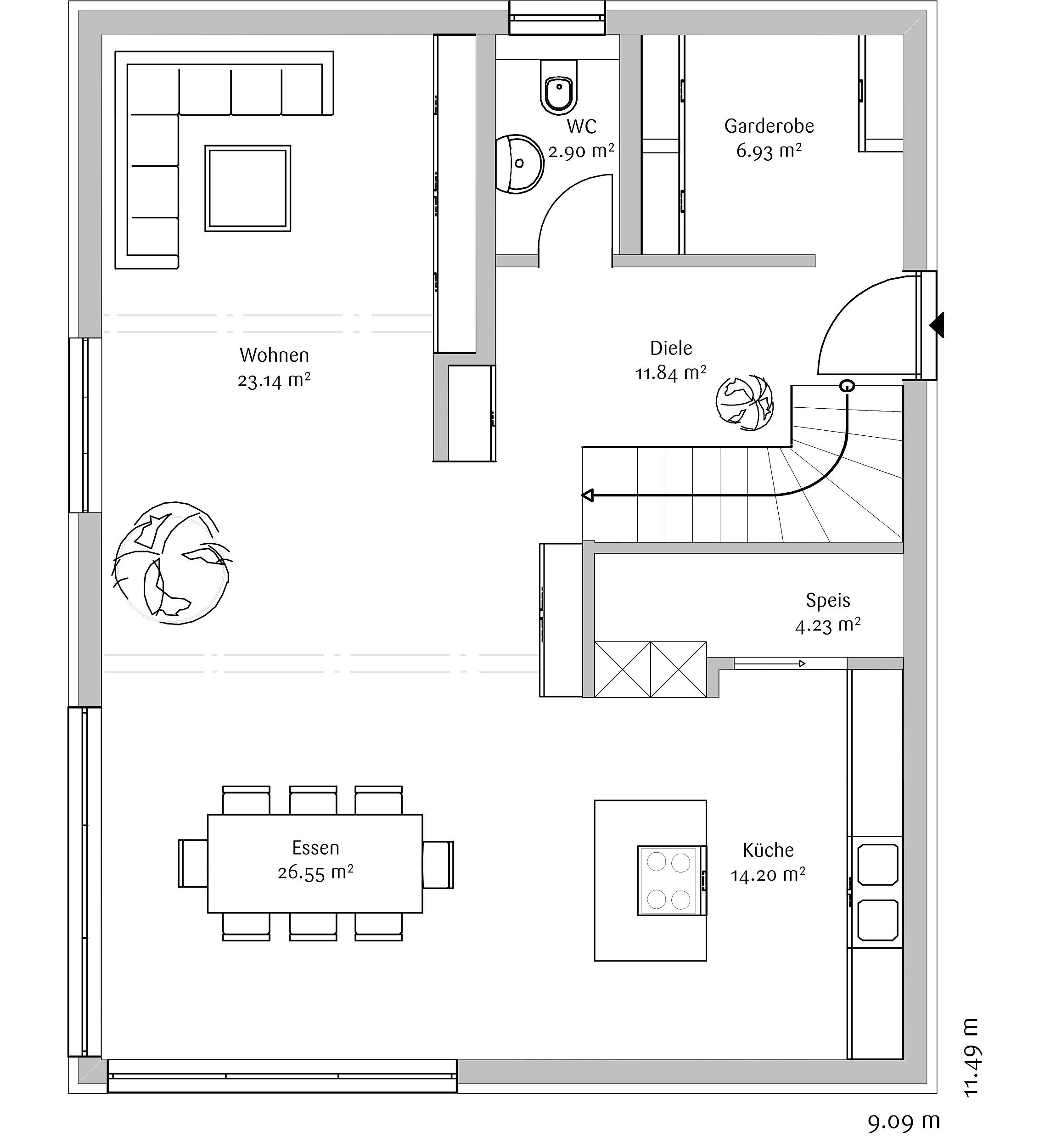
Dieses Einfamilienhaus folgt einer klassischen Satteldacharchitektur und ist auf zwei Ebenen klar strukturiert. Im Erdgeschoss öffnet sich der Wohn- und Essbereich großzügig und bildet den Mittelpunkt des Hauses. Die Küche ist direkt angebunden und wird durch kurze Wege sowie eine Speis funktional ergänzt. Große Fensterflächen schaffen eine helle Atmosphäre und verbinden Innenraum und Garten.

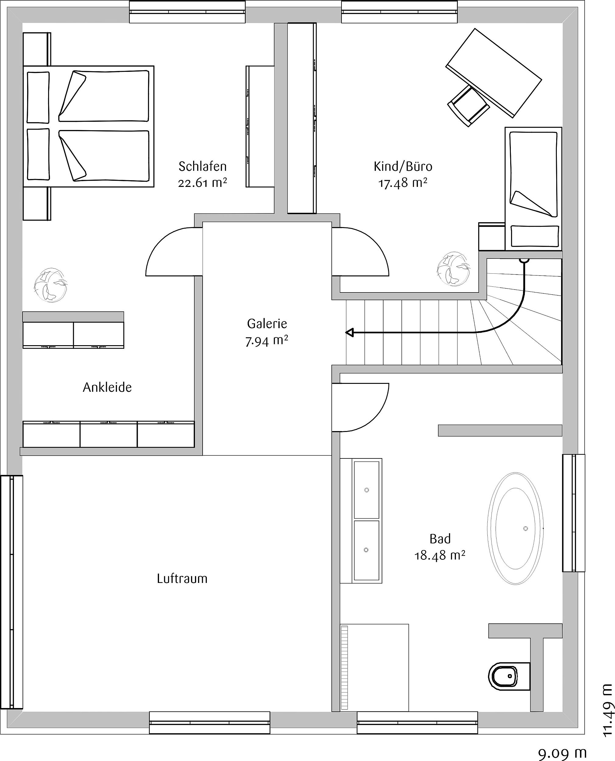
Über die Treppe gelangt man ins Obergeschoss, wo die privaten Räume liegen. Ein Schlafzimmer mit Ankleide, ein weiteres Zimmer sowie ein großzügiges Bad sind um die Galerie angeordnet. Der offene Luftraum bringt zusätzliches Licht ins Haus und sorgt für ein luftiges Raumgefühl. Ein langgezogenes Dachflächenfenster im Treppenbereich verstärkt diesen Effekt und begleitet den Weg nach oben mit Tageslicht.

Die Planung des Hauses entstand nach einer längeren Suche nach der passenden Lösung und wurde schließlich in kurzer Zeit gemeinsam umgesetzt. Das Ergebnis ist ein klar gegliedertes Zuhause mit ruhiger, moderner Anmutung und einem starken Bezug zur umgebenden Landschaft.

Highlights

  • Einfamilienhaus mit klassischem Satteldach
  • Offener Wohn- und Essbereich als Zentrum im Erdgeschoss
  • Küche mit direkter Anbindung und separater Speis
  • Galerie und Luftraum für zusätzliche Helligkeit
  • Schlafzimmer mit Ankleide und großzügigem Bad im Obergeschoss
Details

Klassisch 156

  • Haustyp

    Haustyp

    Einfamilienhaus
  • baustil

    Baustil

    Landhaus
  • dachform

    Dachform

    Satteldach
  • geschosse

    Geschosse

    1
  • zimmer

    Zimmer

    3
  • wohnflaeche

    Wohnfläche

    151 m² bis 200 m²

Grundriss Download