Familienhaus mit Pool

Klassisch 270

Dieses Einfamilienhaus verbindet klassische Satteldacharchitektur mit einem offenen, modernen Grundriss. Im Erdgeschoss bildet der weitläufige Wohn- und Essbereich das Zentrum des Hauses. Große Glasflächen schaffen eine direkte Verbindung zur Terrasse und zum Garten und holen viel Licht in die Räume. Die Küche ist offen integriert und wird durch eine Sitznische sowie den angrenzenden Wohnbereich ergänzt.

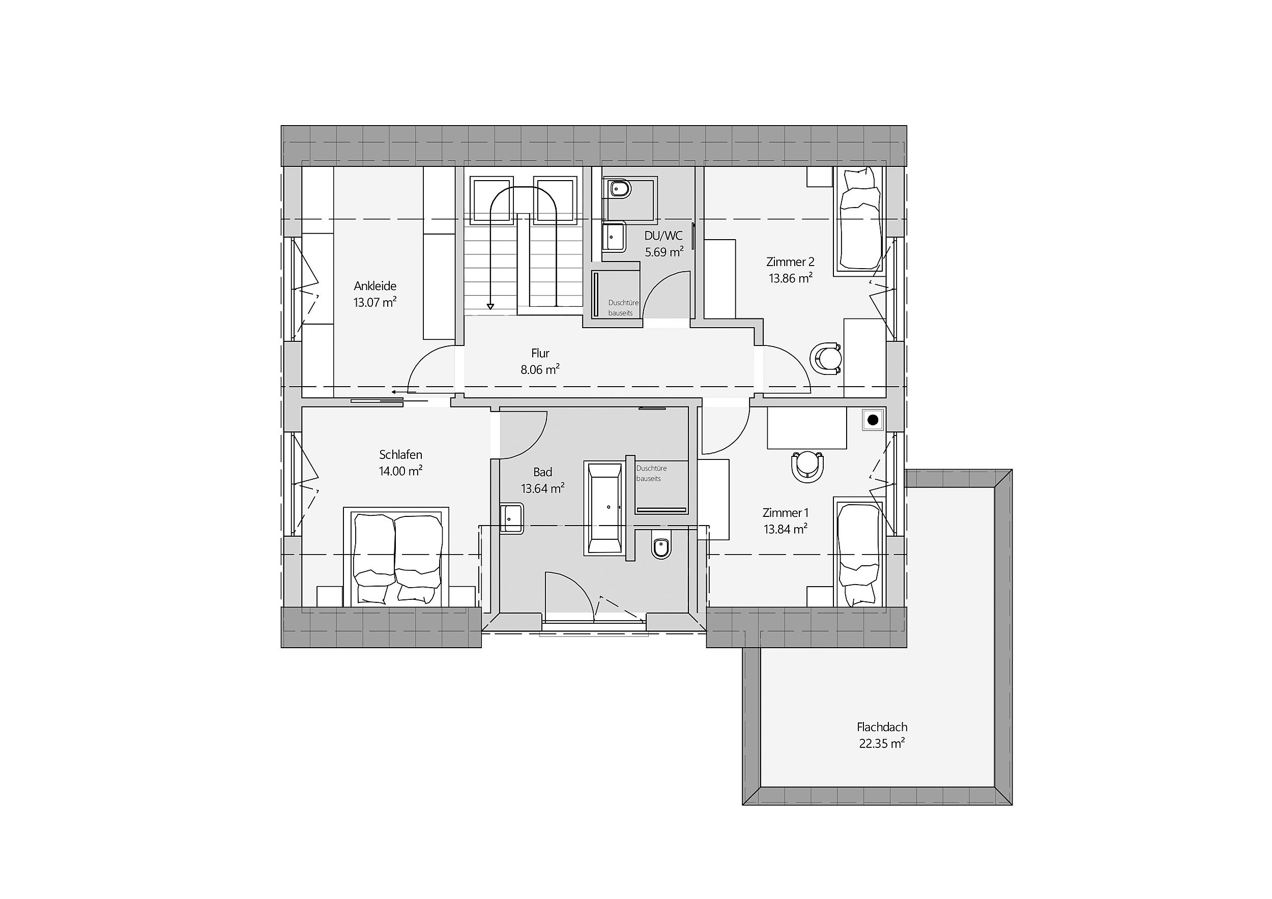
Ein zusätzliches Arbeitszimmer im Erdgeschoss ermöglicht konzentriertes Arbeiten im Alltag. Im Obergeschoss liegen die privaten Rückzugsräume: drei Schlafzimmer, eine Ankleide sowie ein Familienbad. Ergänzt wird die Raumstruktur durch ein weiteres Bad und ein Gäste-WC, wodurch der Alltag klar organisiert werden kann.

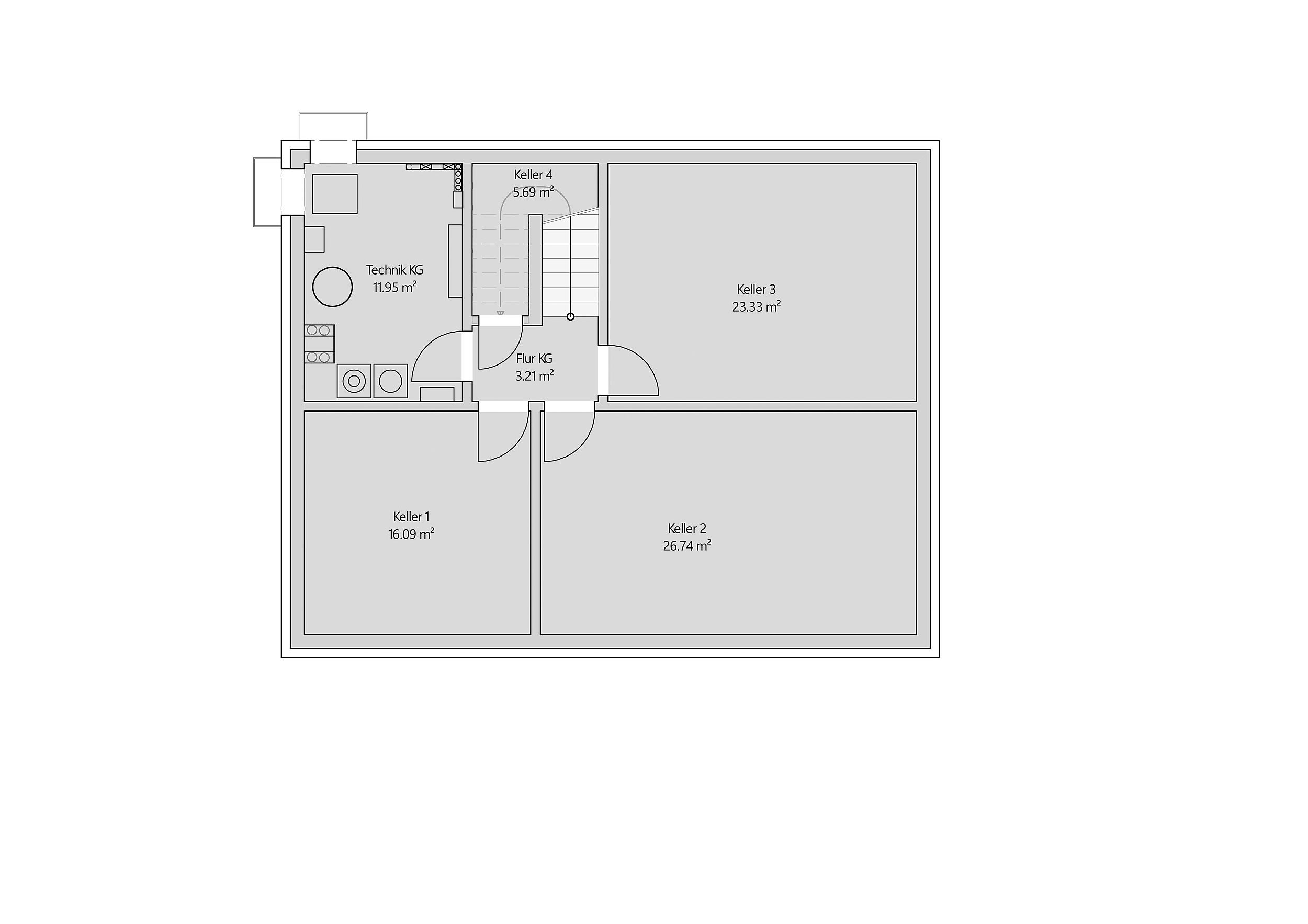
Der ausgebaute Keller erweitert das Haus um zusätzliche Nutz- und Hobbyflächen sowie Technikräume. Im Außenbereich entsteht mit Terrasse, Pool und Sitzbereichen ein zweiter Lebensraum, der besonders in den warmen Monaten intensiv genutzt wird.

Highlights

  • Klassisches Satteldach mit klarer Grundstruktur
  • Offener Wohn- und Essbereich mit Gartenbezug
  • Arbeitszimmer im Erdgeschoss
  • Drei Schlafzimmer mit Ankleide im Obergeschoss
  • Vollunterkellerung mit zusätzlichen Nutzflächen
  • Terrasse mit Pool und Außenlounge
Details

Klassisch 270

  • Haustyp

    Haustyp

    Einfamilienhaus
  • baustil

    Baustil

    Landhaus
  • dachform

    Dachform

    Satteldach
  • geschosse

    Geschosse

    1,5
  • zimmer

    Zimmer

    5
  • wohnflaeche

    Wohnfläche

    151 m² bis 200 m²

Grundriss Download