Clever verkleinert

Modern 118

Dieses Haus entstand aus dem Wunsch nach einem bewussten Neustart. Das Baupaar teilte sein Grundstück und entschied sich für einen Neubau, der genau zu den neuen Lebensgewohnheiten passt. Ein kompakter Baukörper mit Pultdach bildet die Grundlage, ergänzt durch zwei eingeschossige Anbauten.

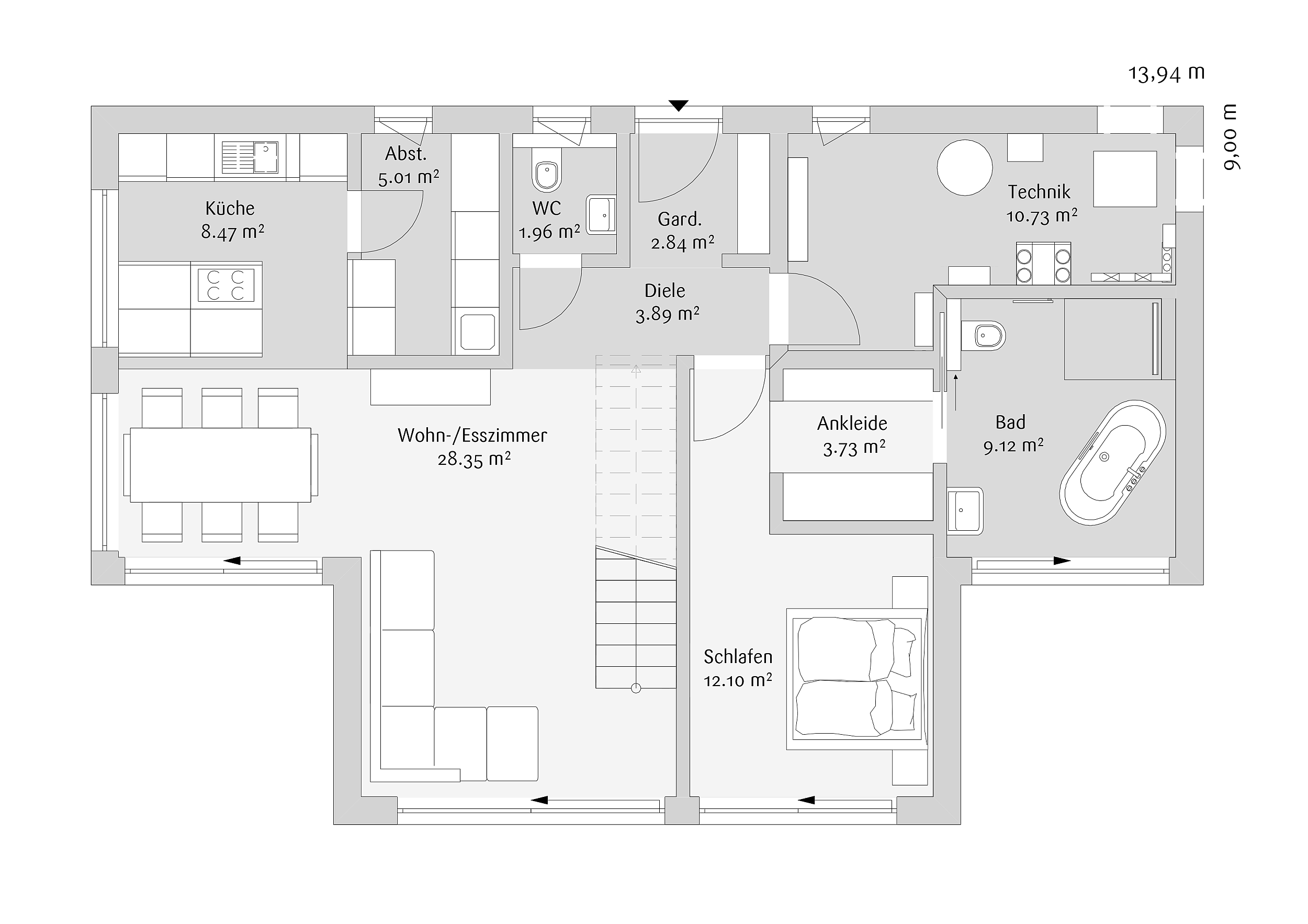
Der zentrale Wohnbereich ist offen gestaltet und durch den Luftraum bis unters Dach besonders hell und großzügig. Küche und Bad wurden bewusst in die seitlichen Anbauten verlagert. So entsteht im Haupthaus ein klar strukturierter Wohnraum mit viel Offenheit.

Alle wichtigen Funktionen liegen auf einer Ebene – ideal für komfortables Wohnen heute und in Zukunft. Im Obergeschoss ergänzen Büro, Gästezimmer und ein kleines Duschbad das Raumangebot. Das Haus wirkt reduziert, aber vollständig. Durchdacht, aber leicht.

Highlights

  • Kompaktes Pultdachhaus mit klarer Struktur
  • Offener Wohnbereich mit Luftraum bis ins Dach
  • Küche und Bad in seitlichen Anbauten organisiert
  • Wohnen auf einer Ebene im Alltag möglich
  • Obergeschoss mit Büro, Gästezimmer und Duschbad
  • Entstanden aus bewusster Verkleinerung und Neustart
Details

Modern 118

  • Haustyp

    Haustyp

    Einfamilienhaus
  • baustil

    Baustil

    Stadthaus
  • dachform

    Dachform

    Pultdach
  • geschosse

    Geschosse

    2
  • zimmer

    Zimmer

    3
  • wohnflaeche

    Wohnfläche

    bis 120 m²

Grundriss Download

Individuelle Hausträume

Kundenhäuser