Offen strukturiert für den Familienalltag Klar geplant, offen gelebt

Modern 172

Modern 172 ist als ausgewogenes Einfamilienhaus mit klassischem Satteldach konzipiert, das Offenheit und Ordnung miteinander verbindet. Im Erdgeschoss bildet der Wohn- und Essbereich das Zentrum des Hauses. Große Fensterflächen sorgen für viel Tageslicht und schaffen eine starke Verbindung zur Terrasse und in den Garten. Die Küche ist klar angebunden und mit einer Kochinsel als kommunikativer Mittelpunkt geplant. Eine direkt angeschlossene Speis unterstützt kurze Wege und sorgt für Ordnung im Alltag. Der Eingangsbereich mit zentral platzierter Treppe strukturiert das Haus und schafft eine klare Orientierung zwischen den Funktionsbereichen. Ein zusätzliches Zimmer im Erdgeschoss kann flexibel als Büro oder Gästezimmer genutzt werden, ein separates WC ergänzt diese Ebene sinnvoll.

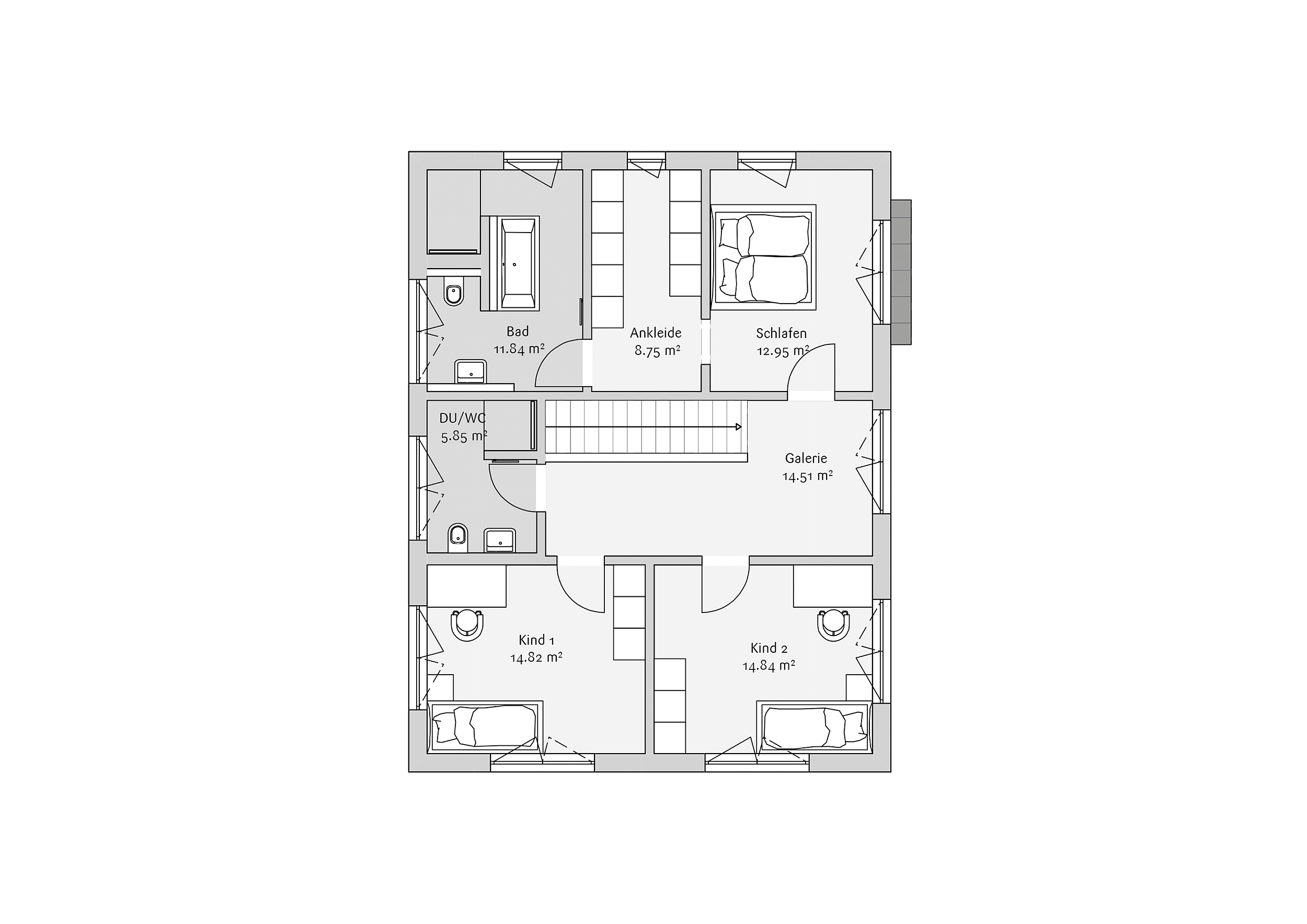
Im Obergeschoss liegen die privaten Rückzugsräume der Familie. Das Elternschlafzimmer ist mit einer offenen Ankleide verbunden und direkt an das Familienbad angeschlossen. Zwei nahezu gleich große Kinderzimmer bieten ausreichend Platz für individuelle Bedürfnisse. Die Galerie verbindet alle Räume, ohne sie zu vermischen, und bringt zusätzliches Licht in die Mitte des Hauses. Der Grundriss ist klar gegliedert und auf langfristige Nutzung ausgelegt – mit ausreichend Flexibilität für unterschiedliche Lebensphasen.

Highlights

  • Klassische Satteldacharchitektur mit moderner Raumorganisation
  • Offener Wohn- und Essbereich mit direktem Gartenbezug
  • Küche mit Kochinsel und angrenzender Speis
  • Zentrale Treppe als architektonisches Gestaltungselement
  • Galerie im Obergeschoss für Licht, Raumtiefe und Orientierung
Modern 172

Auf einen Blick

  • Haustyp

    Haustyp

    Einfamilienhaus
  • baustil

    Baustil

    Stadthaus
  • dachform

    Dachform

    Satteldach
  • geschosse

    Geschosse

    2
  • zimmer

    Zimmer

    5
  • wohnflaeche

    Wohnfläche

    151 m² bis 200 m²

Grundriss

Seht Euch unseren Grundriss im Detail an
Individuelle Hausträume

Ähnliche Häuser

diese Kundenhäuser könnten Euch auch interessieren