Klarer Grundriss mit überdachter Terrasse

Modern 189

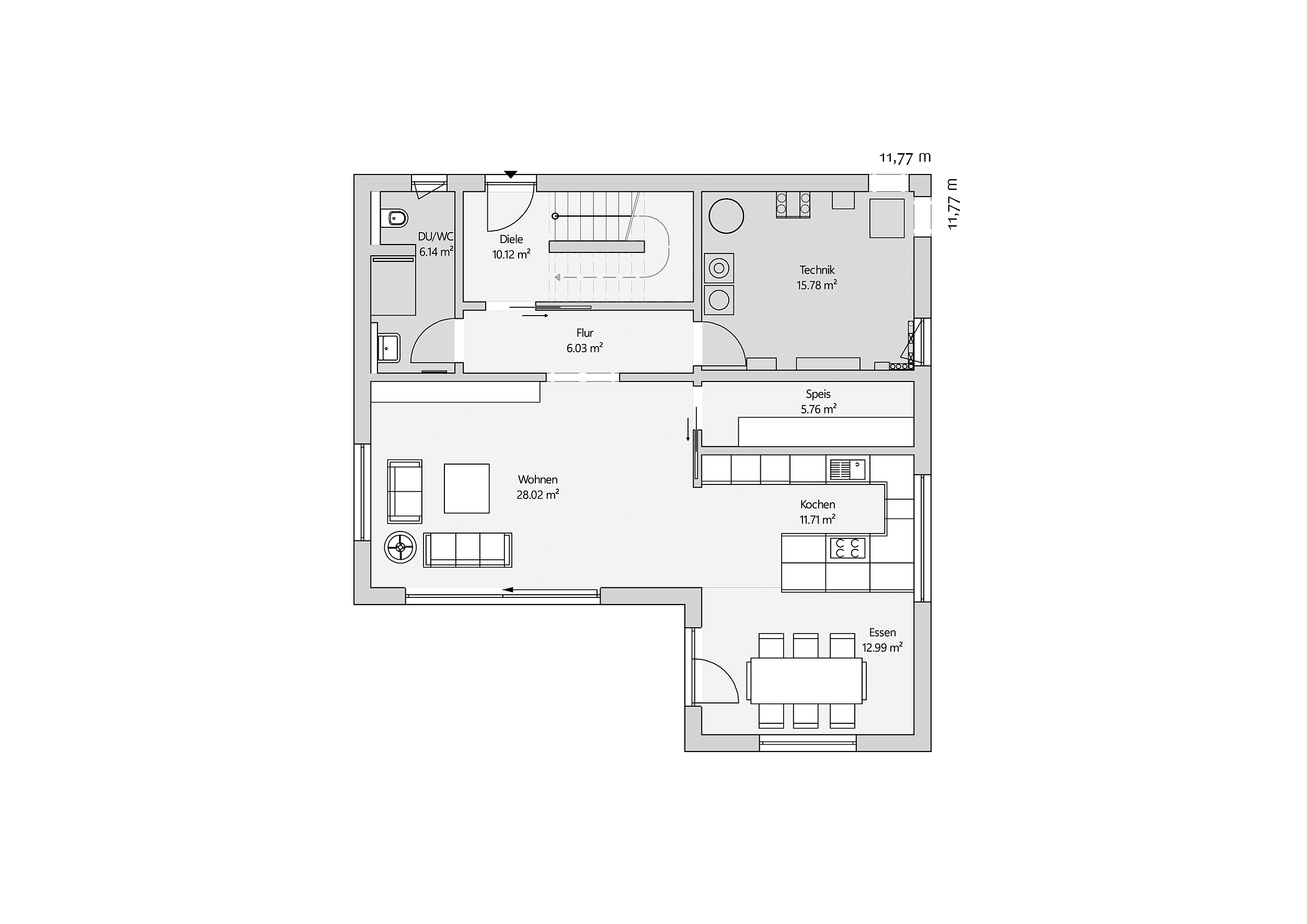
Modern 189 ist ein Einfamilienhaus mit klarer Raumstruktur und ausgewogener Offenheit. Im Erdgeschoss liegen Wohnen, Essen und Kochen in einem offenen Zusammenhang. Große Fensterflächen sorgen für viel Tageslicht und stellen den direkten Bezug zur Terrasse und in den Garten her. Die Küche mit Kochinsel ist funktional eingebunden, eine Speisekammer ergänzt den Ablauf sinnvoll.

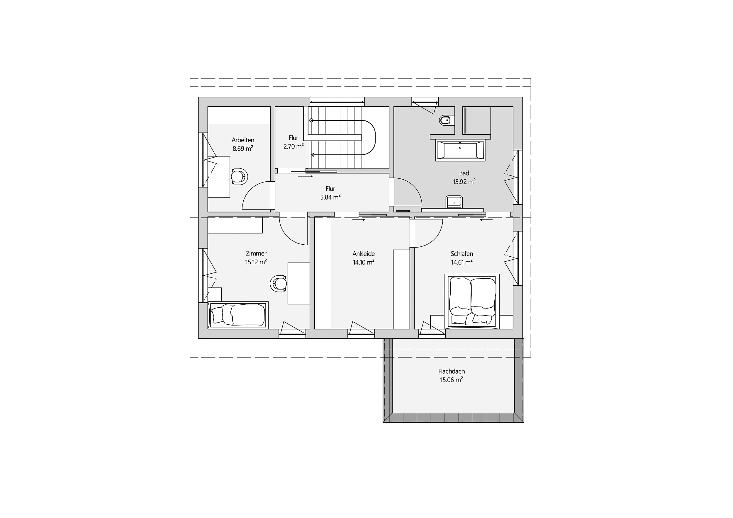
Im Obergeschoss befinden sich die privaten Räume. Das Elternschlafzimmer ist mit einer Ankleide verbunden, hinzu kommen ein weiteres Zimmer und ein separates Arbeitszimmer. Das großzügige Bad ist zentral angeordnet. Die überdachte Terrasse erweitert den Wohnraum nach außen und wird zum festen Bestandteil des täglichen Lebens.

Highligts

  • Einfamilienhaus mit zwei Vollgeschossen
  • Offener Wohn-, Ess- und Kochbereich
  • Elternbereich mit Ankleide
  • Arbeitszimmer im Obergeschoss
  • Überdachte Terrasse mit Gartenbezug
Modern 189

Auf einen Blick

  • Haustyp

    Haustyp

    Einfamilienhaus
  • baustil

    Baustil

    Stadthaus
  • dachform

    Dachform

    Satteldach
  • geschosse

    Geschosse

    1,5
  • zimmer

    Zimmer

    5
  • wohnflaeche

    Wohnfläche

    151 m² bis 200 m²

Grundriss

Seht Euch unseren Grundriss im Detail an
Individuelle Hausträume

Ähnliche Häuser

diese Kundenhäuser könnten Euch auch interessieren