Reduziert und wohnlich Klar gestaltet, entspannt gelebt.

Modern 150

Modern 150 ist als kompaktes Einfamilienhaus mit klassischem Satteldach konzipiert und überzeugt durch eine klare, zeitlose Formensprache. Im Erdgeschoss bildet der offene Wohn-, Ess- und Kochbereich das Zentrum des Hauses. Große Fensterflächen sorgen für viel Tageslicht und öffnen den Raum zur Terrasse und in den Garten. Die Küche ist mit einer Kochinsel als zentraler Treffpunkt gestaltet und fügt sich nahtlos in den Wohnbereich ein. Die zentral positionierte Holztreppe wird zum architektonischen Element und verbindet beide Ebenen auf elegante Weise. Ergänzt wird das Erdgeschoss durch ein zusätzliches Zimmer mit eigenem Duschbad, das flexibel als Büro, Gäste- oder Jugendzimmer genutzt werden kann.

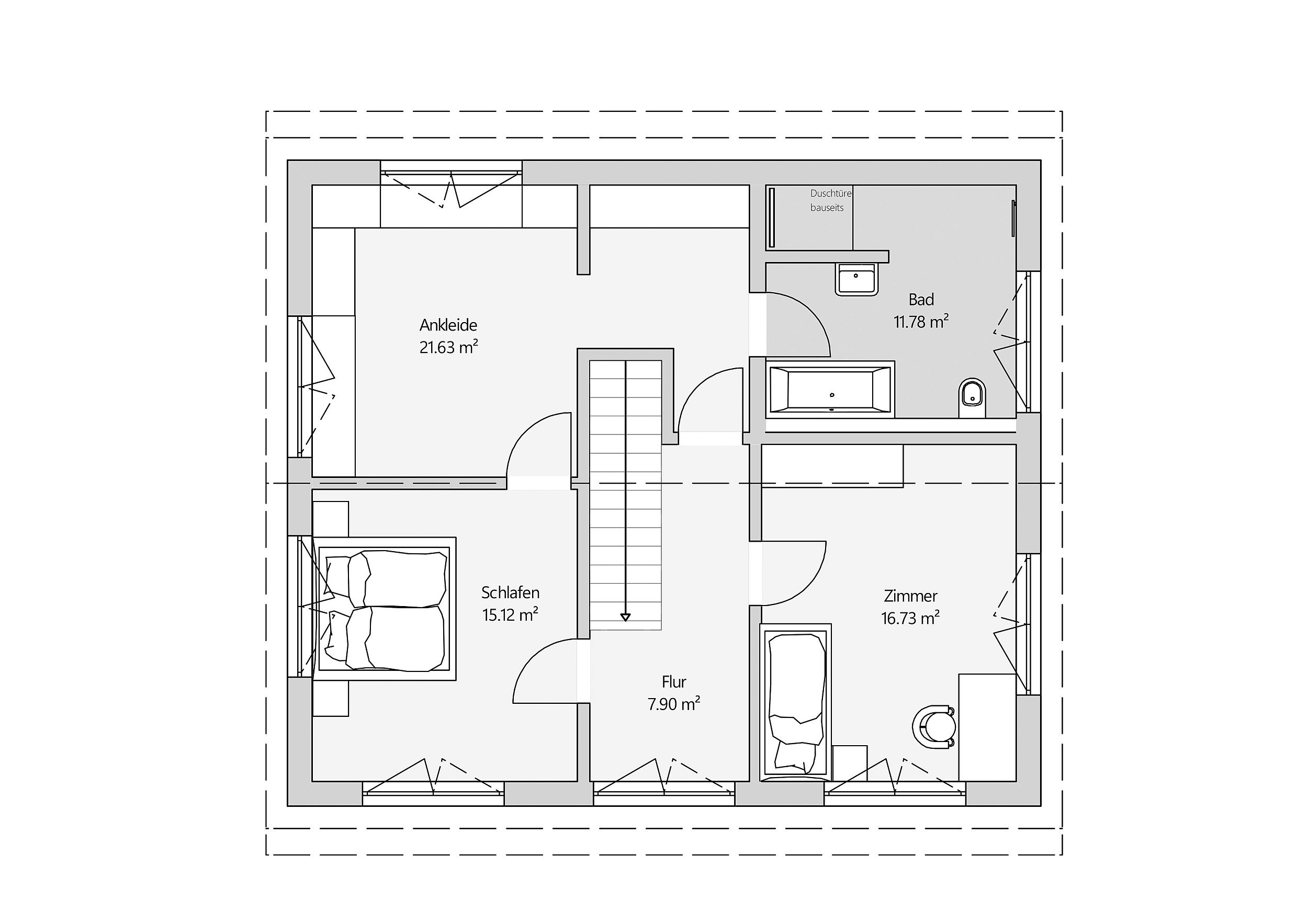
Im Dachgeschoss liegen die privaten Rückzugsräume der Familie. Drei Schlafzimmer bieten ausreichend Platz für unterschiedliche Lebenssituationen. Das Elternschlafzimmer ist mit einer großzügigen Ankleide verbunden, das helle Familienbad ist klar strukturiert und funktional geplant. Der Flur erschließt alle Räume übersichtlich und sorgt für eine ruhige, geordnete Atmosphäre. Der Grundriss ist bewusst reduziert gehalten und bietet genau dort Raum, wo er im Alltag gebraucht wird.

Highlights

  • Klassische Satteldacharchitektur mit reduzierter, zeitloser Formensprache
  • Offener Wohn-, Ess- und Kochbereich mit direktem Terrassenbezug
  • Küche mit Kochinsel als zentraler Treffpunkt
  • Zentrale Holztreppe als architektonisches Gestaltungselement
  • Zusätzliches Zimmer mit Duschbad im Erdgeschoss für flexible Nutzung
  • Elternbereich mit großzügiger Ankleide und hellem Familienbad
Details

Modern 150

  • Haustyp

    Haustyp

    Einfamilienhaus
  • baustil

    Baustil

    Stadthaus
  • dachform

    Dachform

    Satteldach
  • geschosse

    Geschosse

    1,5
  • zimmer

    Zimmer

    5
  • wohnflaeche

    Wohnfläche

    151 m² bis 200 m²

Grundriss Download

Individuelle Hausträume

Kundenhäuser