Wohnen und Arbeiten klar getrennt

Modern 239

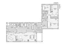
Modern 239 ist als Einfamilienhaus mit Anbau konzipiert und verbindet zwei architektonische Elemente: ein Satteldachhaus als Wohnbereich und einen Flachdachanbau für das Arbeiten. Im Haupthaus liegt der offene Wohn- und Essbereich im Erdgeschoss, der sich über große Fensterflächen zum Garten öffnet. Die Küche ist als verbindendes Element zwischen Haus und Anbau geplant und unterstützt kurze Wege im Alltag.

Der Anbau ist separat nutzbar und bewusst eigenständig organisiert. Er bietet Raum für Empfang, Büro und Behandlungszimmer und kann alternativ auch als Einliegerwohnung genutzt werden. Im Obergeschoss des Haupthauses befinden sich die privaten Rückzugsräume der Familie mit Elternschlafzimmer und Ankleide, zwei Kinderzimmern, Arbeitszimmer und Familienbad. Der Grundriss ist auf langfristige Nutzung ausgelegt und lässt Anpassungen an veränderte Lebensmodelle zu.

Highlights

  • Einfamilienhaus mit separat nutzbarem Anbau
  • Kombination aus Satteldachhaus und Flachdachanbau
  • Klare Trennung von Wohnen und Arbeiten
  • Offener Wohn- und Essbereich mit Gartenbezug
  • Anbau flexibel als Arbeitsbereich oder Einliegerwohnung nutzbar
Modern 239

Auf einen Blick

  • Haustyp

    Haustyp

    Einfamilienhaus
  • baustil

    Baustil

    Stadthaus
  • dachform

    Dachform

    Satteldach
  • geschosse

    Geschosse

    2
  • zimmer

    Zimmer

    10
  • wohnflaeche

    Wohnfläche

    über 200 m²

Grundriss

Seht Euch unseren Grundriss im Detail an
Individuelle Hausträume

Ähnliche Häuser

diese Kundenhäuser könnten Euch auch interessieren