Neubau als stimmige Erweiterung

Modern 194

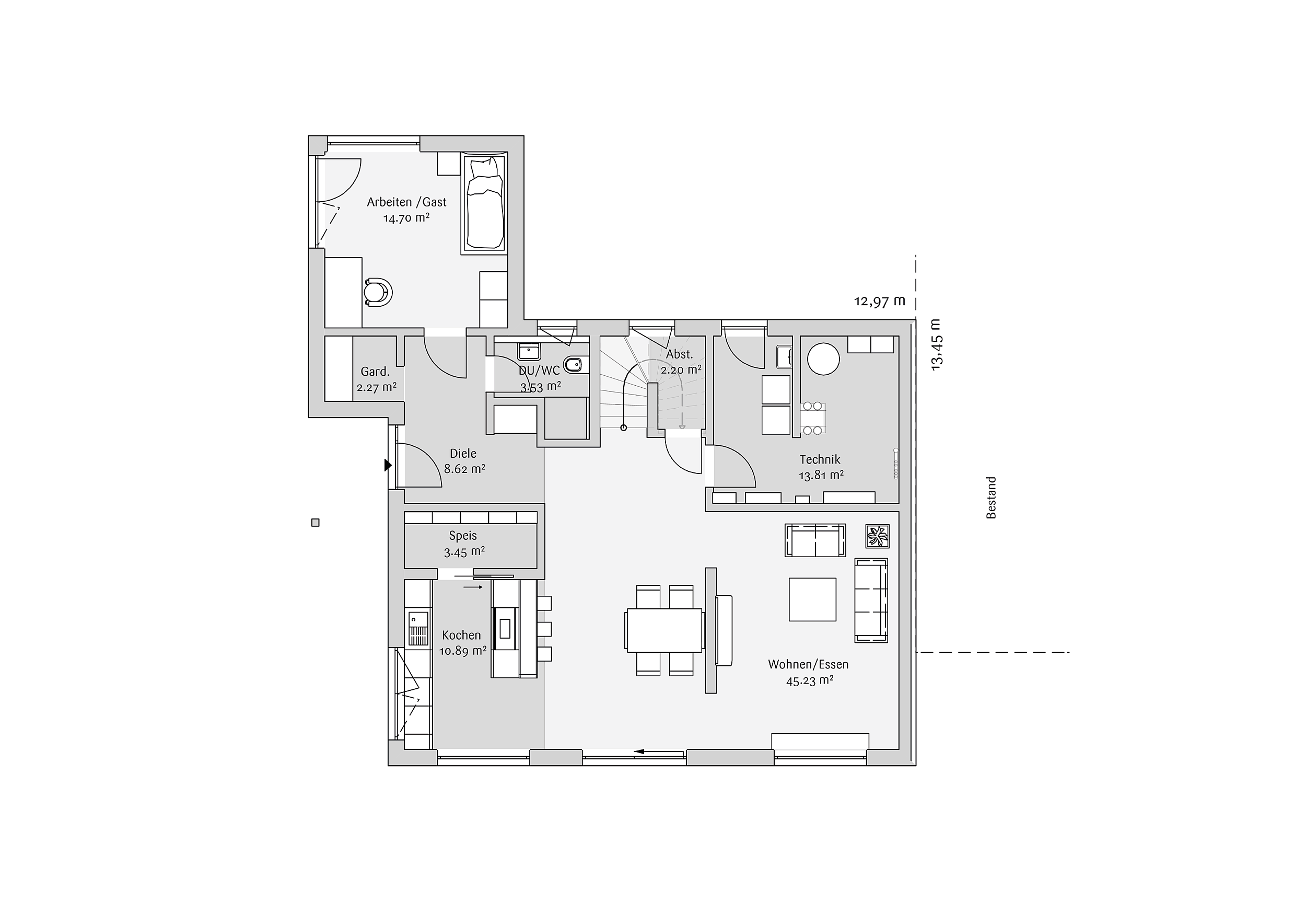
Modern 194 ist als Anbau an ein bestehendes Gebäude geplant und bildet mit diesem eine funktionale Einheit. Der Neubau übernimmt die Rolle des zentralen Wohnbereichs und öffnet sich im Erdgeschoss großzügig zum Garten. Wohnen, Essen und Kochen sind offen angelegt, klar zoniert und über große Fensterflächen mit dem Außenraum verbunden. Die Küche ist zentral positioniert und wird durch eine direkt angeschlossene Speisekammer ergänzt.

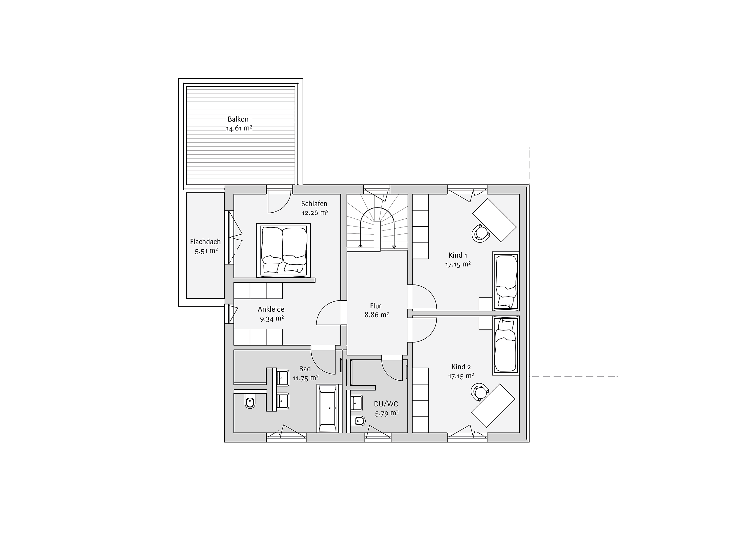
Im Obergeschoss liegen die privaten Rückzugsräume. Das Elternschlafzimmer ist mit einer Ankleide verbunden und öffnet sich zum Balkon. Zwei Kinderzimmer sowie ein großzügiges Bad ergänzen diese Ebene. Der bewusste Verzicht auf einen Keller wird durch einen gut organisierten Technikraum ausgeglichen.

Highlights

  • Einfamilienhaus mit Anbau an Bestand
  • Offener Wohn- und Essbereich
  • Speisekammer und Technikraum
  • Balkon und Terrasse
  • Klar gegliederter Familiengrundriss
Modern 194

Auf einen Blick

  • Haustyp

    Haustyp

    Einfamilienhaus
  • baustil

    Baustil

    Stadthaus
  • dachform

    Dachform

    Satteldach
  • geschosse

    Geschosse

    2
  • zimmer

    Zimmer

    5
  • wohnflaeche

    Wohnfläche

    151 m² bis 200 m²

Grundriss

Seht Euch unseren Grundriss im Detail an
Individuelle Hausträume

Ähnliche Häuser

diese Kundenhäuser könnten Euch auch interessieren