Offen wohnen mit klarer Linie Großzügig gedacht, lichtdurchflutet gelebt.

Modern 168

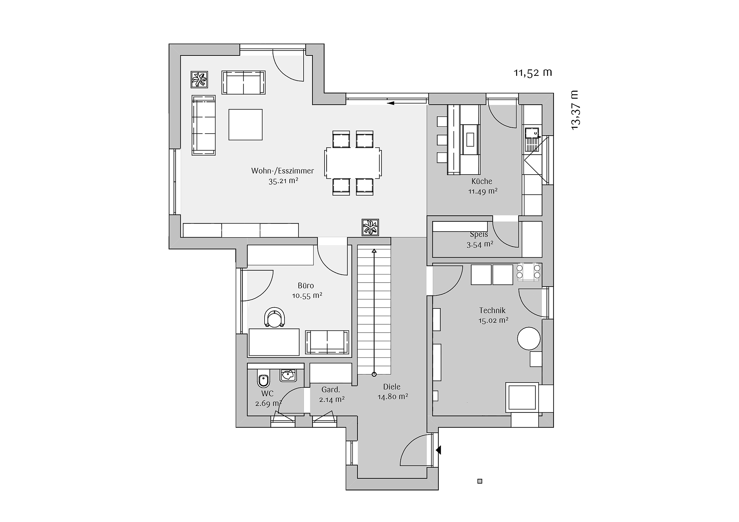
Modern 168 ist als zeitgemäßes Einfamilienhaus mit klarer Linienführung und Satteldach konzipiert. Charakteristisch ist der großzügige Wohn- und Essbereich im Erdgeschoss, der durch große Fensterflächen und den direkten Zugang zur Terrasse viel Tageslicht erhält und Innen- und Außenraum fließend miteinander verbindet. Der leicht zurückgesetzte Wohnbereich verleiht dem Grundriss eine besondere räumliche Qualität und schafft eine offene, kommunikative Atmosphäre.

Die Küche ist offen angebunden und funktional organisiert. Eine direkt angeschlossene Speis bietet zusätzlichen Stauraum und unterstützt kurze Wege im Alltag. Der Eingangsbereich ist großzügig dimensioniert und bildet mit der zentral positionierten Treppe das räumliche Rückgrat des Hauses. Ergänzt wird das Erdgeschoss durch ein separates Büro, ein Gäste-WC sowie einen Technikraum mit ausreichend Platz für Haustechnik und Hauswirtschaft.

Im Obergeschoss liegen die privaten Rückzugsräume der Familie. Zwei gleich große Kinderzimmer sowie das Elternschlafzimmer sind über einen zentralen Flur erschlossen. Das Elternzimmer ist direkt mit einer Ankleide verbunden. Das Familienbad ist großzügig geplant und bietet sowohl Badewanne als auch Dusche. Zusätzliche Flachdachbereiche schaffen architektonische Akzente und ermöglichen geschützte Außenflächen. Der Grundriss ist klar strukturiert, funktional und auf langfristige Nutzung ausgelegt.

Highlights

  • Moderne Satteldacharchitektur mit klarer, zeitloser Formensprache
  • Großzügiger Wohn- und Essbereich mit direktem Terrassenbezug
  • Offene Küche mit angrenzender Speis
  • Separates Büro im Erdgeschoss für Homeoffice oder Gäste
  • Elternbereich mit Ankleide und großzügigem Familienbad
  • Architektonische Akzente durch integrierte Flachdachbereiche
Details

Modern 168

  • Haustyp

    Haustyp

    Einfamilienhaus
  • baustil

    Baustil

    Stadthaus
  • dachform

    Dachform

    Satteldach
  • geschosse

    Geschosse

    2
  • zimmer

    Zimmer

    5
  • wohnflaeche

    Wohnfläche

    151 m² bis 200 m²

Grundriss Download

Individuelle Hausträume

Kundenhäuser