Reduziert geplant für einen komfortablen Alltag

Modern 153

Modern 153 ist als kompaktes Einfamilienhaus mit moderner Pultdacharchitektur konzipiert und überzeugt durch eine klare Linienführung sowie eine zeitgemäße, reduzierte Gestaltung. Bereits von außen prägt das geneigte Dach die Architektur und verleiht dem Haus eine eigenständige, moderne Ausstrahlung.

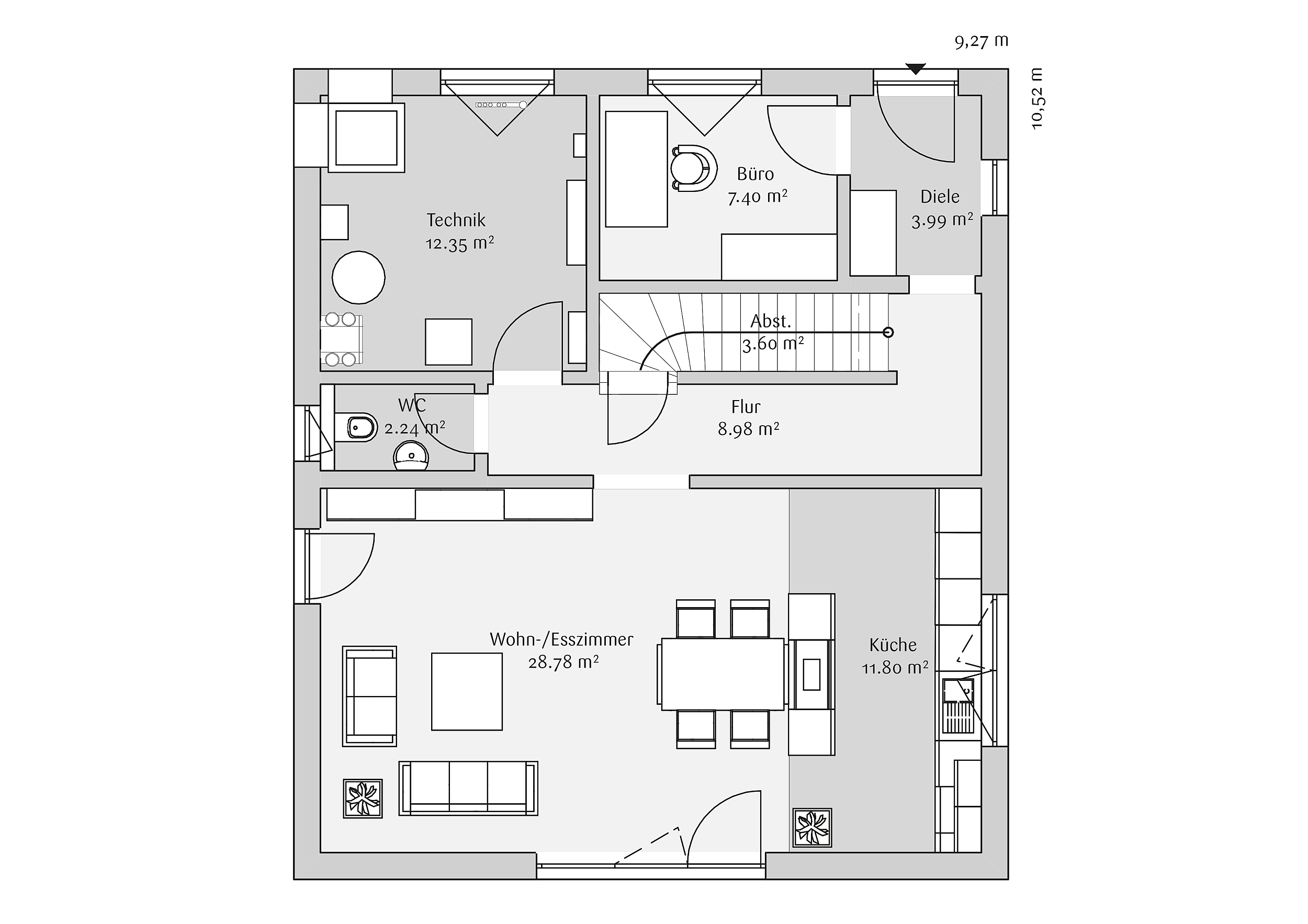
Im Erdgeschoss bildet der offen gestaltete Wohn- und Essbereich das Herzstück des Hauses. Große Fensterflächen sorgen für viel Tageslicht und schaffen eine direkte Verbindung zum Garten. Die Küche ist funktional integriert und bietet kurze Wege zwischen Kochen, Essen und Wohnen. Ein separates Gäste-WC sowie ein zusätzlicher Raum, der flexibel als Büro oder Gästezimmer genutzt werden kann, ergänzen diese Ebene sinnvoll. Der Technik- und Hauswirtschaftsraum ist klar angebunden und macht einen Keller in vielen Fällen überflüssig.

Im Obergeschoss liegen die privaten Rückzugsbereiche der Familie. Ein zentraler Flur verbindet alle Räume übersichtlich miteinander. Das Elternschlafzimmer verfügt über einen eigenen Ankleidebereich und direkten Zugang zum Bad. Für die Kinder steht ein zusätzliches Bad zur Verfügung – ein Detail, das den Alltag spürbar entlastet und morgendliche Routinen entspannt. Die Raumaufteilung ist klar, funktional und auf langfristige Nutzung ausgelegt.

Highlights

  • Moderne Pultdacharchitektur mit klarer Formsprache
  • Offener Wohn- und Essbereich mit direktem Gartenbezug
  • Separates Büro- oder Gästezimmer im Erdgeschoss
  • Elternbereich mit Ankleide und direktem Badzugang
  • Zusätzliches Kinderbad im Obergeschoss für mehr Alltagstauglichkeit
Details

Modern 153

  • Haustyp

    Haustyp

    Einfamilienhaus
  • baustil

    Baustil

    Stadthaus
  • dachform

    Dachform

    Pultdach
  • geschosse

    Geschosse

    2
  • zimmer

    Zimmer

    6
  • wohnflaeche

    Wohnfläche

    151 m² bis 200 m²

Grundriss Download

Individuelle Hausträume

Kundenhäuser