Langgezogen und durchdacht erweitert Klar geplant, alltagstauglich ergänzt.

Modern 154

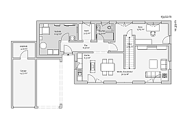
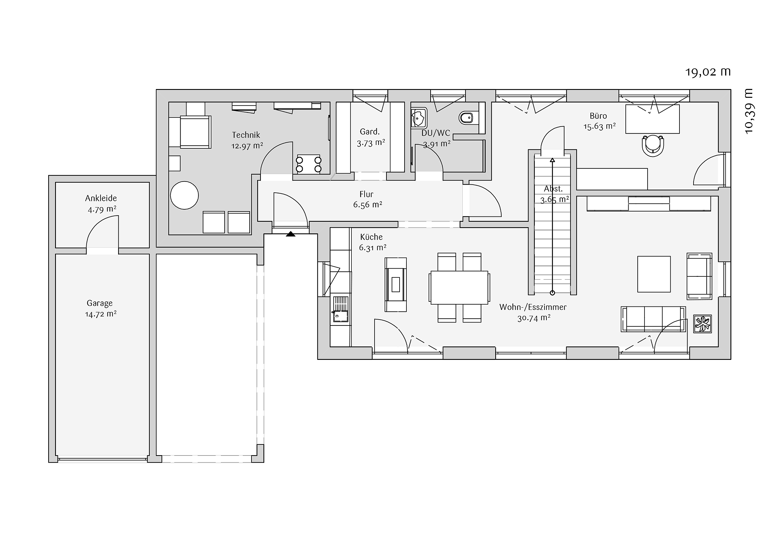
Modern 154 ist als zeitgemäßes Einfamilienhaus mit klarer, länglicher Kubatur konzipiert und wird durch eine integrierte Garage mit zusätzlicher Ankleide sinnvoll erweitert. Diese Zone dient als praktische Schleuse zwischen Außen und Innen und ermöglicht es, sich nach Gartenarbeit oder Freizeitaktivitäten direkt umzuziehen – ohne Schmutz ins Haus zu tragen. Im Erdgeschoss öffnet sich der Grundriss zu einem großzügigen Wohn- und Essbereich mit offener Küche. Das angrenzende Wohnzimmer kann über eine Schiebetür bei Bedarf abgetrennt werden und bietet so flexible Nutzung zwischen Offenheit und Rückzug. Ergänzt wird diese Ebene durch ein großzügiges Büro, eine Garderobe sowie einen Technik- und Hauswirtschaftsraum, der den Alltag funktional organisiert.

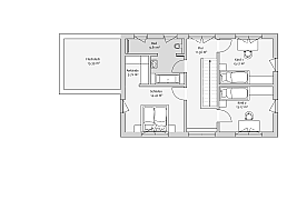
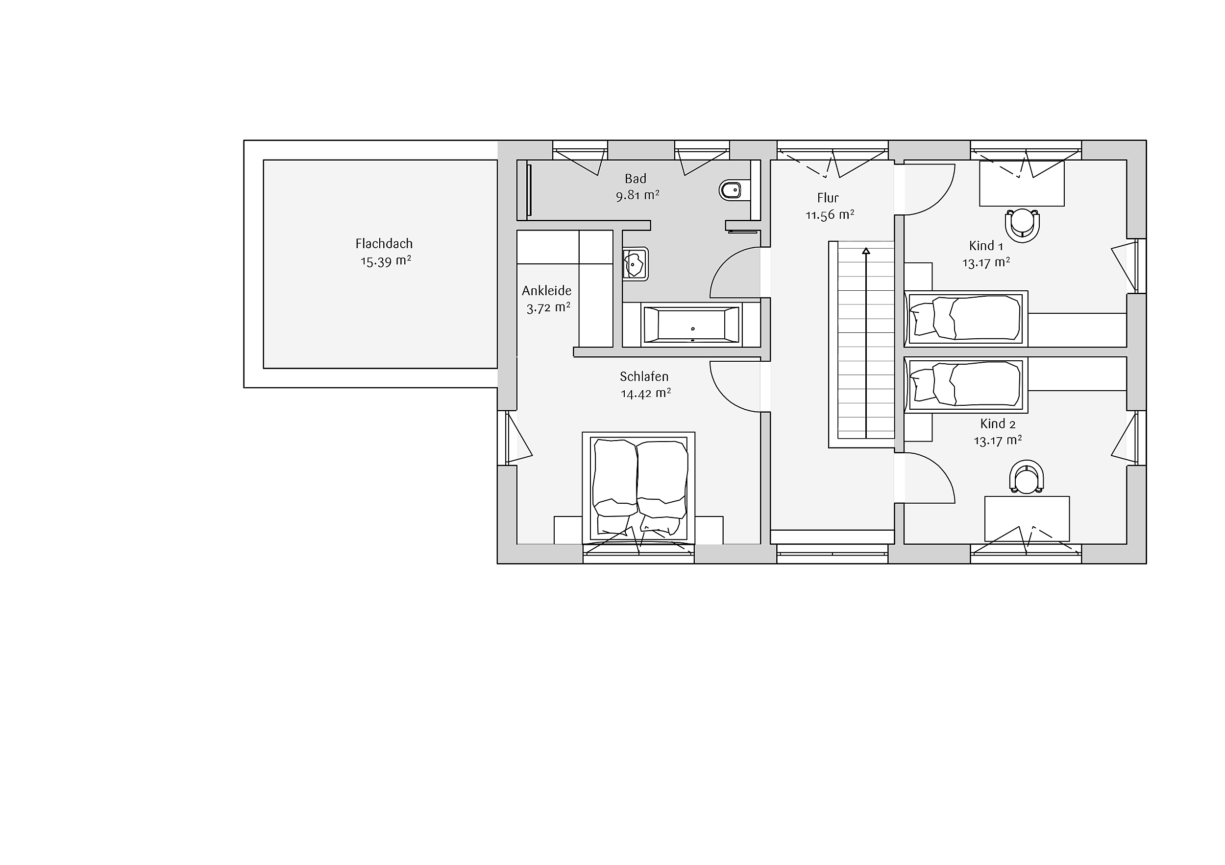
Über eine geländerlose Holztreppe gelangt man ins Obergeschoss, das die privaten Rückzugsräume der Familie beherbergt. Zwei gleich große Kinderzimmer sind klar vom Elternbereich getrennt. Das Elternschlafzimmer ist mit einer Ankleide verbunden, von der aus direkt die kleine Dachterrasse erreichbar ist – ein privater Ort im Freien. Das Familienbad ist großzügig geplant und bietet sowohl eine Badewanne als auch eine große, offene Dusche. Ein besonderes Detail ist das Sitzfenster im Obergeschoss, das als ruhiger Lieblingsplatz mit Blick nach draußen zum Entspannen einlädt. Der Grundriss verbindet klare Struktur mit hoher Wohnqualität und vielen liebevollen Alltagslösungen.

Highlights

  • Langgezogene, moderne Architektur mit klarer Linienführung
  • Garage mit zusätzlicher Ankleide als praktische Schmutzschleuse
  • Offener Wohn- und Essbereich mit abtrennbarem Wohnzimmer
  • Großzügiges Büro im Erdgeschoss für Homeoffice oder Gäste
  • Elternbereich mit Ankleide und Zugang zur Dachterrasse
  • Sitzfenster im Obergeschoss als besonderer Rückzugsort
Details

Modern 154

  • Haustyp

    Haustyp

    Einfamilienhaus
  • baustil

    Baustil

    Stadthaus
  • dachform

    Dachform

    Satteldach
  • geschosse

    Geschosse

    2
  • zimmer

    Zimmer

    5
  • wohnflaeche

    Wohnfläche

    151 m² bis 200 m²

Grundriss Download

Individuelle Hausträume

Kundenhäuser