Familienfreundlich und klar strukturiert Großzügig geplant, entspannt gelebt.

Modern 159

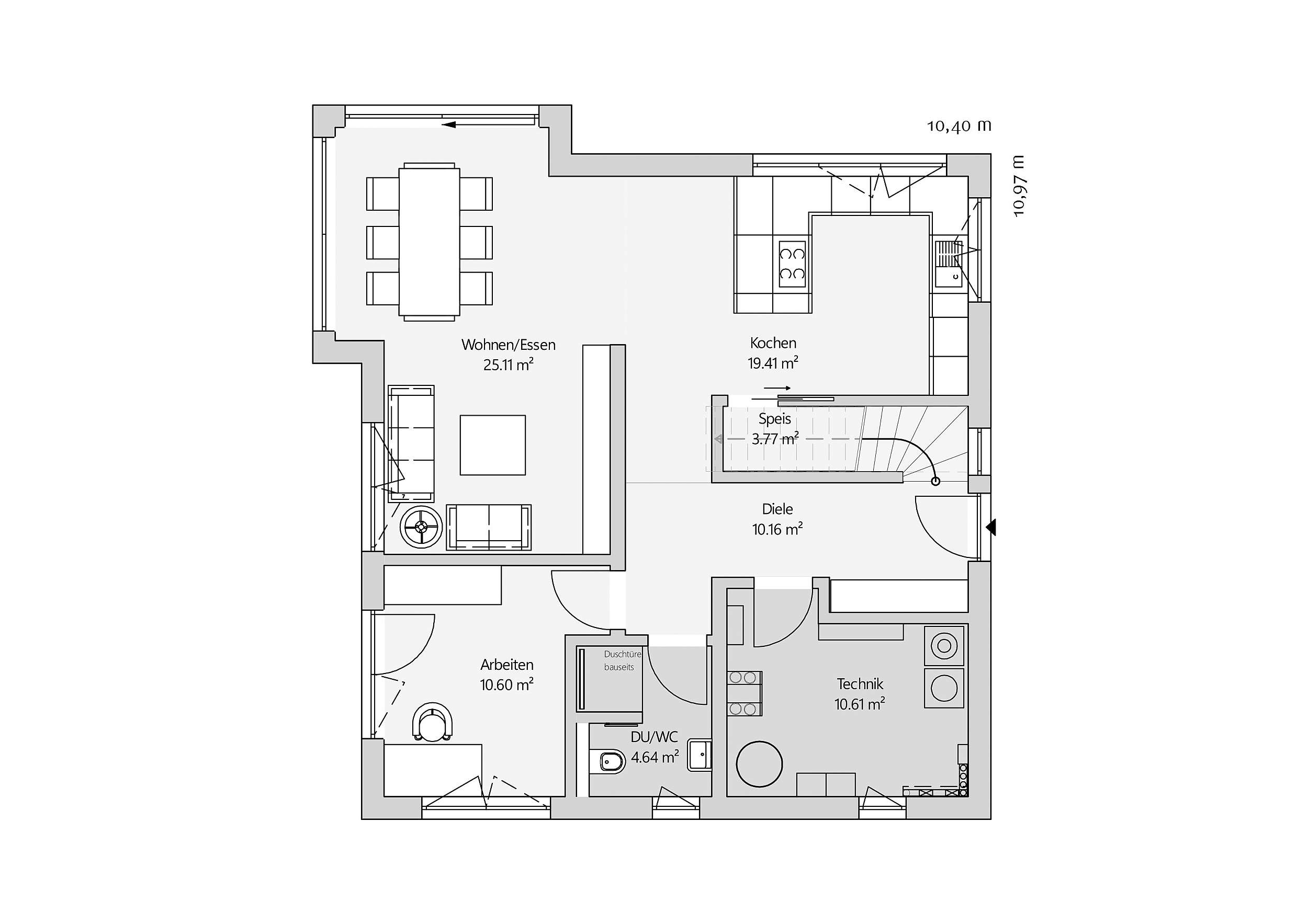
Modern 159 ist als klassisches Einfamilienhaus mit Satteldach konzipiert und überzeugt durch eine klare, funktionale Raumorganisation. Im Erdgeschoss bildet der großzügige Wohn- und Essbereich das Herzstück des Hauses. Große Fensterflächen sorgen für viel Tageslicht und öffnen den Blick in den Garten. Die Küche ist offen integriert und durch eine zentrale Kochinsel als kommunikativer Mittelpunkt gestaltet. Eine direkt angeschlossene Speis bietet zusätzlichen Stauraum und unterstützt kurze Wege im Alltag.

Der Eingangsbereich ist kompakt und klar strukturiert, mit direktem Zugang zur Treppe und allen wichtigen Funktionsräumen. Ein separates Arbeits- oder Gästezimmer ermöglicht flexible Nutzung, ergänzt durch ein Duschbad sowie einen Technikraum mit ausreichend Platz für Haustechnik und Hauswirtschaft.

Im Obergeschoss liegen die privaten Rückzugsräume der Familie. Zwei gleichwertige Kinderzimmer sowie das Elternschlafzimmer sind über eine großzügige Galerie erschlossen, die dem Geschoss Offenheit und Licht verleiht. Das Elternzimmer ist direkt mit einer Ankleide verbunden. Das Familienbad ist großzügig geplant und bietet sowohl Dusche als auch Badewanne – ideal für den Alltag mit mehreren Personen. Der Grundriss ist auf langfristige Nutzung ausgelegt und bietet Flexibilität für unterschiedliche Lebensphasen.

Highlights

  • Klassische Satteldacharchitektur mit zeitloser Formensprache
  • Großzügiger Wohn- und Essbereich mit direktem Gartenbezug
  • Offene Küche mit Kochinsel und separater Speis
  • Zusätzliches Arbeits- oder Gästezimmer im Erdgeschoss
  • Galerie im Obergeschoss für Licht, Raumgefühl und Orientierung
  • Elternbereich mit separater Ankleide und großzügigem Familienbad
  • Haustyp

    Haustyp

    Einfamilienhaus
  • baustil

    Baustil

    Stadthaus
  • dachform

    Dachform

    Satteldach
  • geschosse

    Geschosse

    1,5
  • zimmer

    Zimmer

    5
  • wohnflaeche

    Wohnfläche

    151 m² bis 200 m²

Grundriss Download

Individuelle Hausträume

Kundenhäuser