Großzügig wohnen mit klarer Struktur

Modern 228

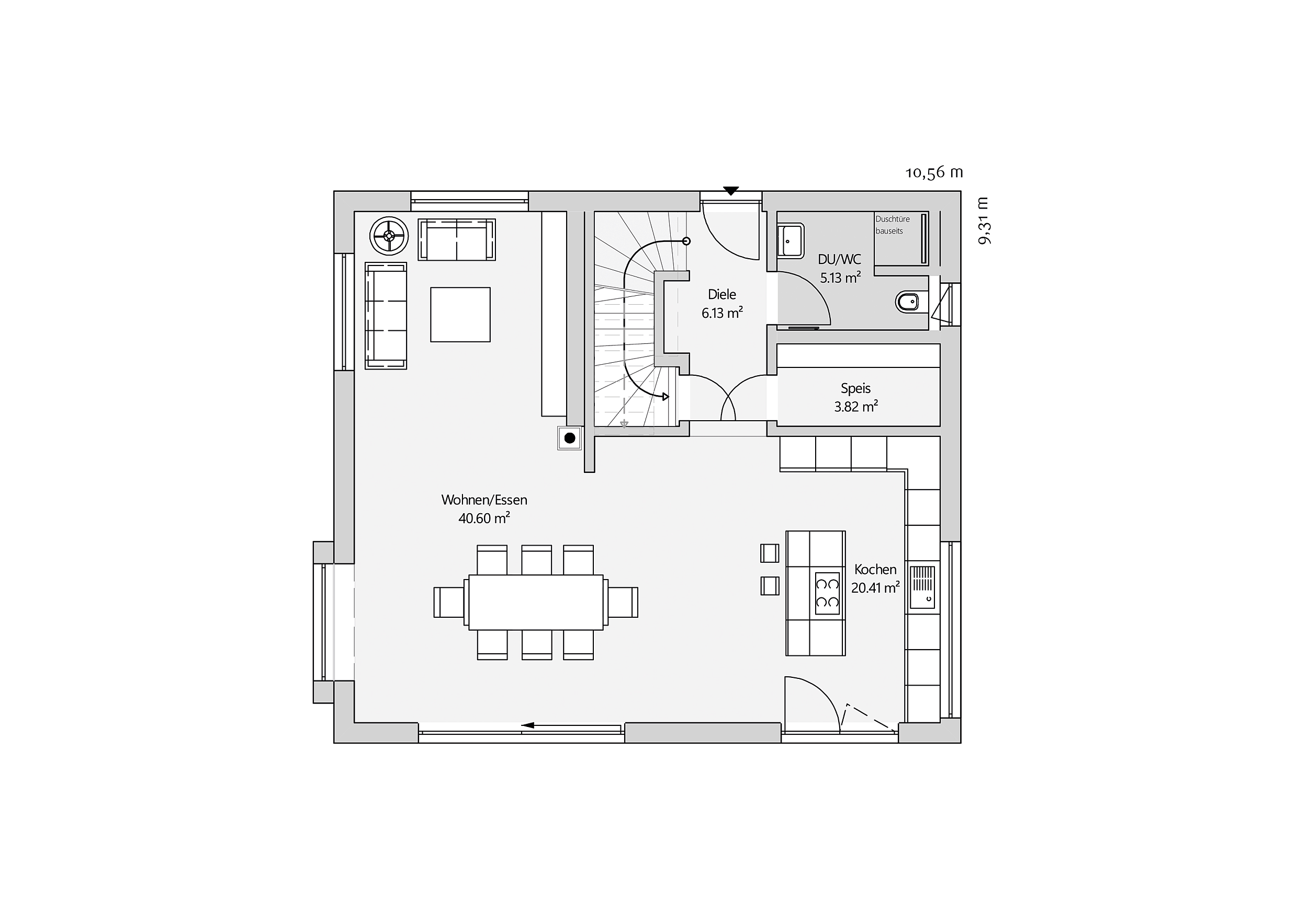
Modern 228 ist ein Einfamilienhaus mit großzügiger Wohnfläche und klarer architektonischer Linie. Im Erdgeschoss befindet sich ein weitläufiger Wohn- und Essbereich, der offen mit der Küche verbunden ist. Die Kochinsel bildet das Zentrum, eine Speisekammer ergänzt den Ablauf funktional. Große Fensterfronten sorgen für viel Licht und verbinden den Wohnraum mit Terrasse und Garten.

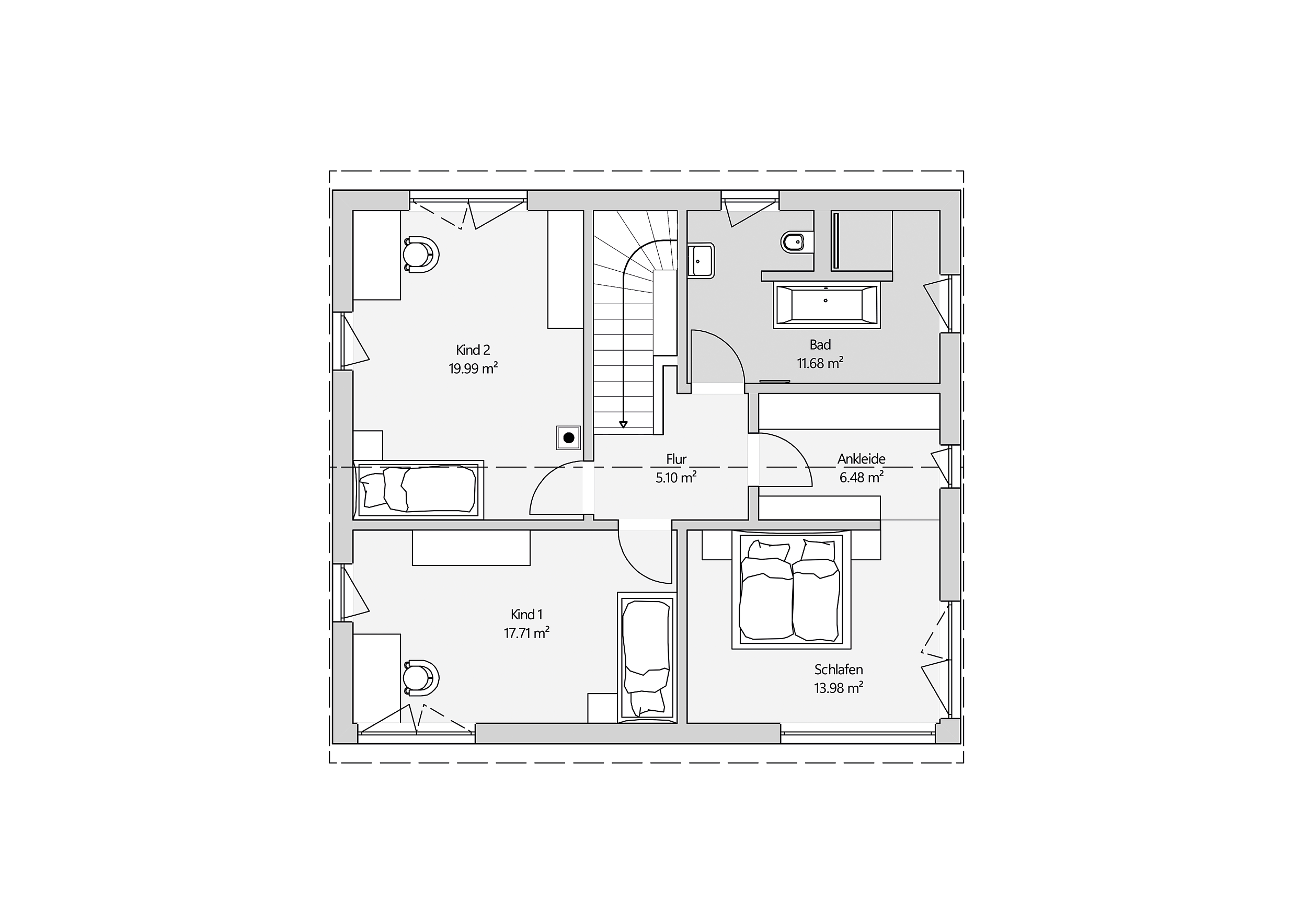
Im Obergeschoss liegen die privaten Räume mit zwei Kinderzimmern, Elternschlafzimmer mit Ankleide sowie einem zentralen Bad. Das Kellergeschoss erweitert das Haus um zusätzliche Nutzflächen und eine integrierte Garage. Der Grundriss ist auf Alltagstauglichkeit und langfristige Nutzung ausgelegt.

Highligts

  • Einfamilienhaus mit ca. 228 m² Wohnfläche
  • Offener Wohn- und Essbereich
  • Küche mit Kochinsel und Speisekammer
  • Elternbereich mit Ankleide
  • Kellergeschoss mit integrierter Garage
Modern 228

Auf einen Blick

  • Haustyp

    Haustyp

    Einfamilienhaus
  • baustil

    Baustil

    Stadthaus
  • dachform

    Dachform

    Satteldach
  • geschosse

    Geschosse

    1,5
  • zimmer

    Zimmer

    6
  • wohnflaeche

    Wohnfläche

    über 200 m²

Grundriss

Seht Euch unseren Grundriss im Detail an
Individuelle Hausträume

Ähnliche Häuser

diese Kundenhäuser könnten Euch auch interessieren