Effizient geplant mit Einliegeroption Klar strukturiert, vielseitig nutzbar.

Modern 188

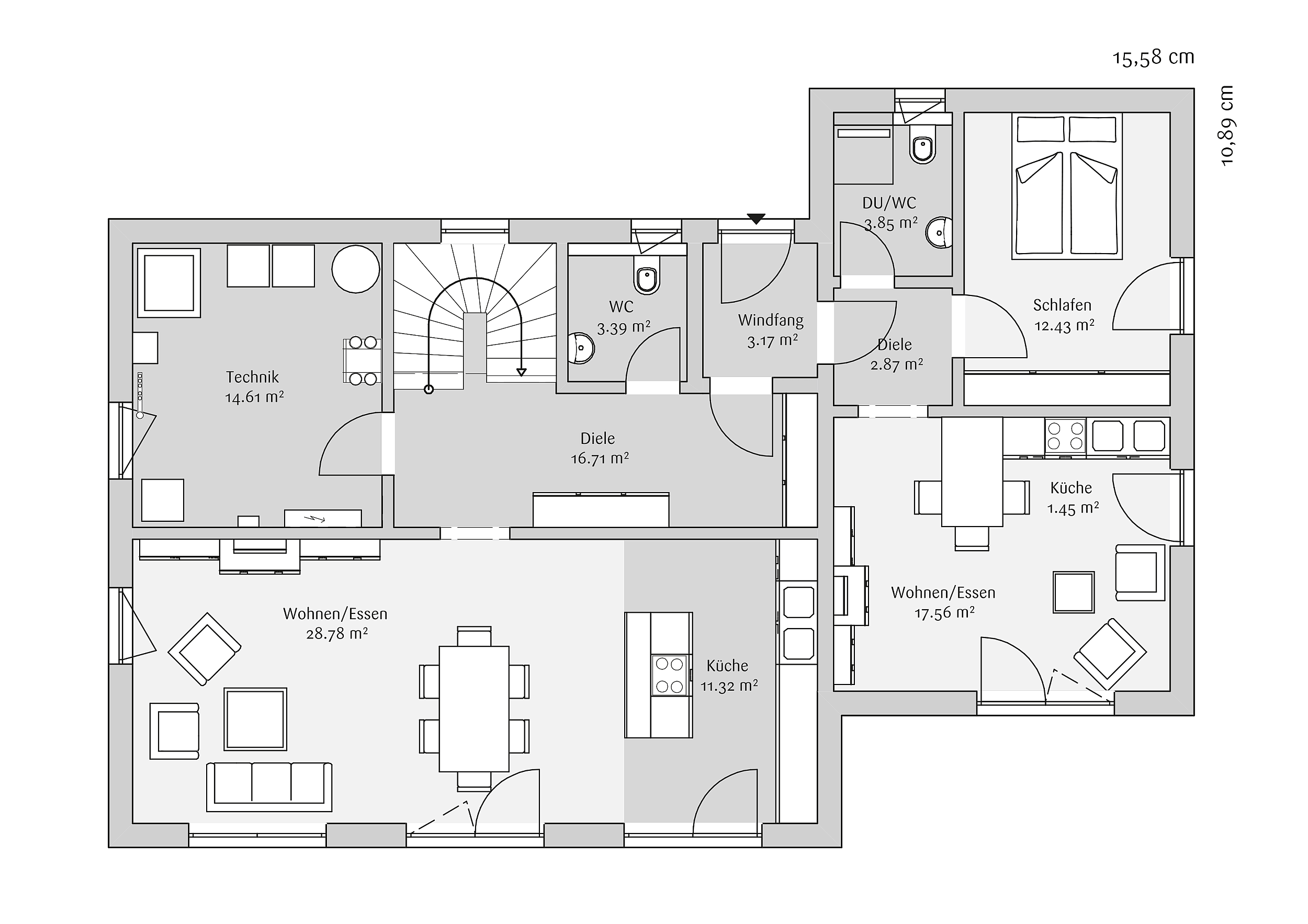
Modern 188 ist als durchdachtes Einfamilienhaus mit klassischer Satteldacharchitektur konzipiert und verbindet Offenheit mit klarer funktionaler Struktur. Im Erdgeschoss bildet der großzügige Wohn- und Essbereich das Zentrum des Hauses und öffnet sich über große Fensterflächen zur Terrasse und in den Garten. Die Küche ist offen integriert und durch ihre Lage klar an den Essbereich angebunden. Die zentrale Diele mit geschwungener Treppe strukturiert das Haus und verbindet alle Funktionsbereiche auf kurze Wege. Ein separates Gäste-WC sowie ein großzügiger Technikraum ergänzen diese Ebene sinnvoll. Der seitliche Anbau ermöglicht einen zusätzlichen, eigenständig nutzbaren Wohnbereich mit Schlafen, Bad und Wohnen – ideal als Einliegerwohnung, Homeoffice oder Gästebereich.

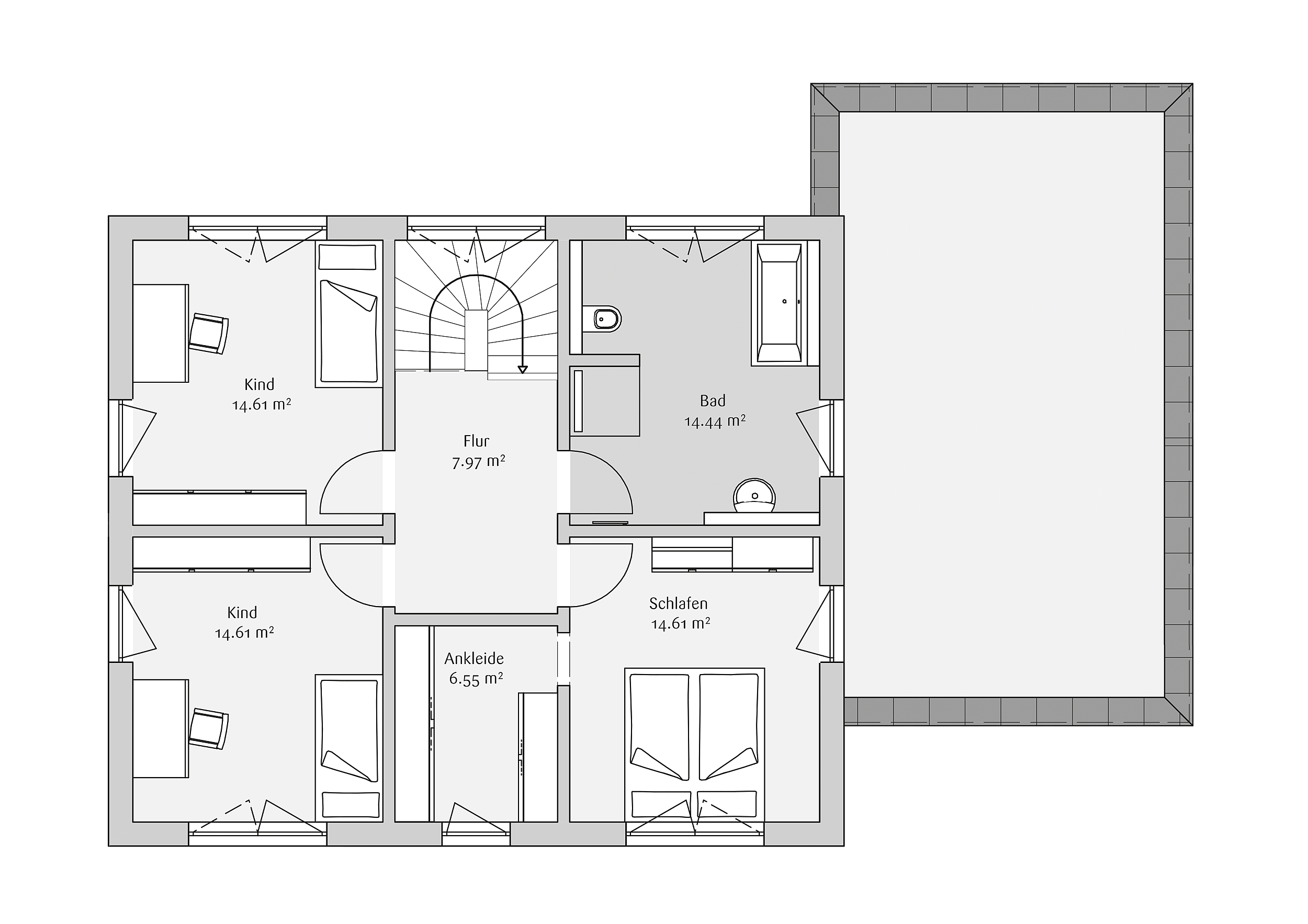
Im Obergeschoss liegen die privaten Rückzugsräume der Familie. Zwei gleichwertige Kinderzimmer sind klar vom Elternbereich getrennt. Das Elternschlafzimmer ist mit einer großzügigen Ankleide verbunden und direkt an das Familienbad angeschlossen. Der zentrale Flur sorgt für eine klare Orientierung zwischen den Räumen. Über den Anbau ist zusätzlich eine großzügige Dachterrasse erreichbar, die als privater Rückzugsort im Freien genutzt werden kann und den Wohnraum nach oben erweitert.

Highlights

  • Klassische Satteldacharchitektur mit klarer, zeitloser Form
  • Großzügiger Wohn- und Essbereich mit direktem Gartenbezug
  • Separater Anbau mit Einliegeroption für Arbeiten, Gäste oder Mehrgenerationenwohnen
  • Elternschlafzimmer mit komfortabler Ankleide
  • Dachterrasse als zusätzlicher, privater Außenraum
Details

Modern 188

  • Haustyp

    Haustyp

    Einfamilienhaus
  • baustil

    Baustil

    Stadthaus
  • dachform

    Dachform

    Satteldach
  • geschosse

    Geschosse

    1,5
  • zimmer

    Zimmer

    6
  • wohnflaeche

    Wohnfläche

    151 m² bis 200 m²

Grundriss Download

Individuelle Hausträume

Kundenhäuser