Wohnen und Arbeiten klar getrennt

Modern 240

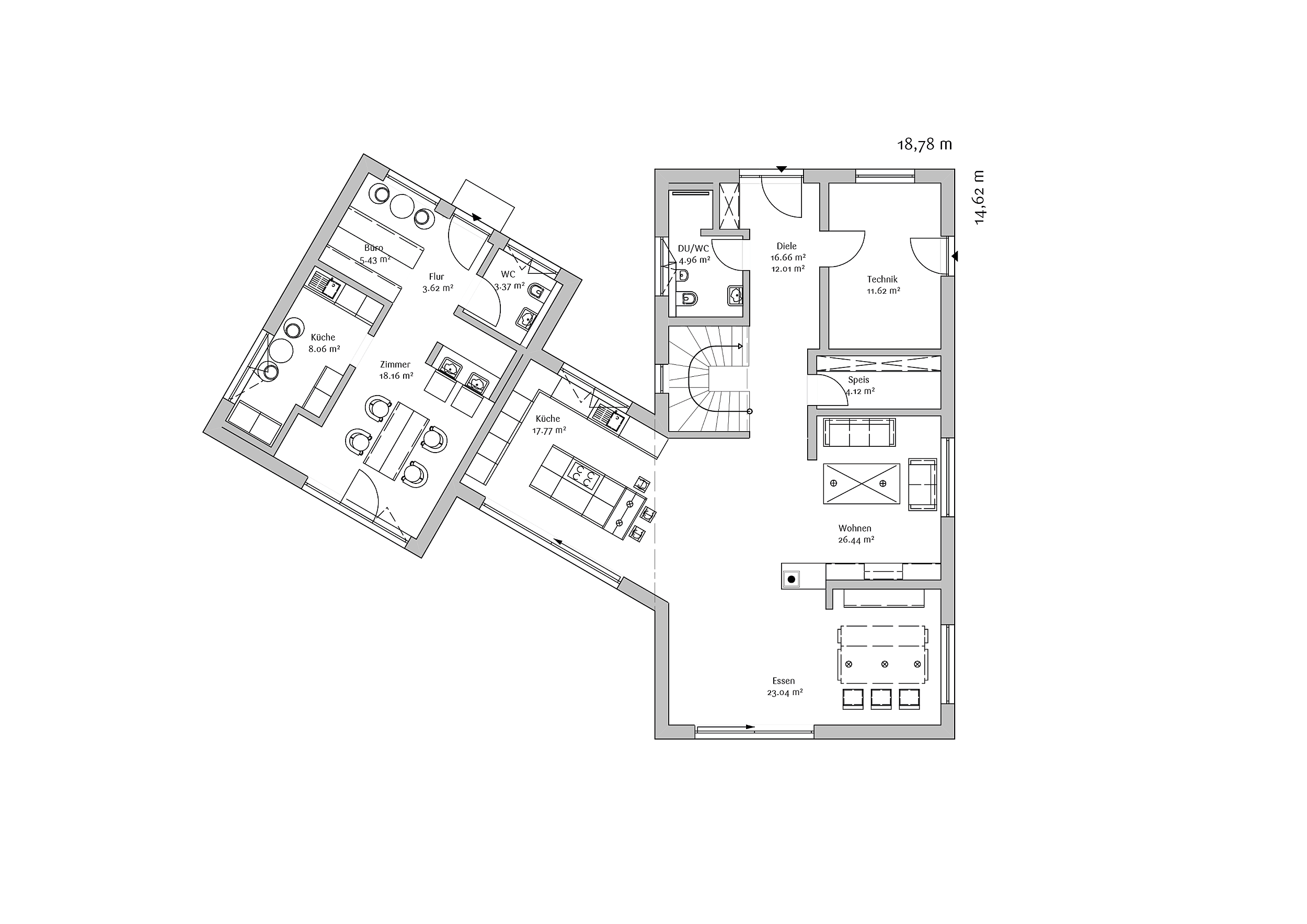
Modern 240 ist ein Einfamilienhaus mit integriertem Arbeitsbereich. Im Erdgeschoss sind Wohnen, Essen und Kochen offen angeordnet und klar zoniert. Große Fensterflächen öffnen den Wohnbereich zum Garten. Die Küche mit Insel ist funktional eingebunden und bildet das Zentrum des Familienlebens.

Der Arbeitsbereich ist separat erschlossen und ermöglicht konzentriertes Arbeiten, ohne den privaten Wohnbereich zu stören. Im Obergeschoss befinden sich die privaten Räume mit Elternschlafzimmer, Kinderzimmern, Bad und zusätzlichem Büro. Der Grundriss ist auf langfristige Nutzung und flexible Lebensmodelle ausgelegt.

Highligts

  • Einfamilienhaus mit integriertem Arbeitsbereich
  • Klare Trennung von Wohnen und Arbeiten
  • Offener Wohn- und Essbereich
  • Separate Erschließung für den Arbeitsbereich
  • Geeignet für hybride Lebensmodelle
Modern 240

Auf einen Blick

  • Haustyp

    Haustyp

    Einfamilienhaus
  • baustil

    Baustil

    Stadthaus
  • dachform

    Dachform

    Pultdach
  • geschosse

    Geschosse

    2
  • zimmer

    Zimmer

    6
  • wohnflaeche

    Wohnfläche

    über 200 m²

Grundriss

Seht Euch unseren Grundriss im Detail an
Individuelle Hausträume

Ähnliche Häuser

diese Kundenhäuser könnten Euch auch interessieren